*ERFOLGREICH VERMARKTET*
2-Zimmer-Hochparterrewohnung in zentraler Lage von Viersen.
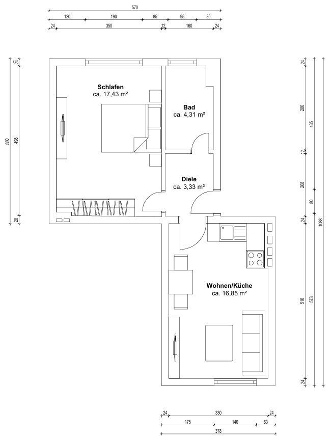
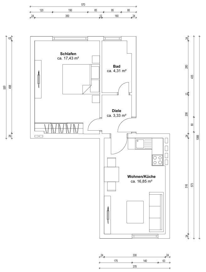
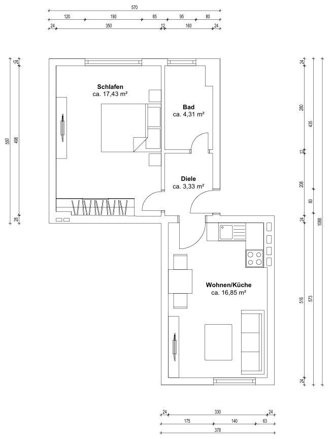
ca. 42 m² Wohnfläche
1 Schlafzimmer
Miete 400 € zzgl. 110 € Nebenkosten (ohne Heizkosten)
800 € Kaution (keine Provision)
Zimmer
2
Anzahl Bäder
1 x Bad
Bezugsfrei
nach Vereinbarung
Schlafzimmer
1
Balkon / Terrasse / Garten
nicht vorhanden
Qualität Ausstattung Zustand
normal
Heizung
Gas- Heizung
Garage / Stellplatz
nicht vorhanden
Energieausweis
Liegt zur Besichtigung vor.
Beschreibung
In zentraler Lage von Viersen präsentiert sich diese gut geschnittene Hochparterre-Wohnung, die mit einer Wohnfläche von 42 m² ideal für Einsteiger geeignet ist. Die Immobilie umfasst ein Wohnzimmer mit offener Küche, ein Schlafzimmer, eine Diele sowie ein Badezimmer mit Dusche. Die Beheizung erfolgt über eine Etagenheizung der Marke Vaillant aus dem Jahr 2000. Zudem steht ein Kellerraum zur Verfügung.
Lage
Remigiusstraße 49, 41751 Viersen
Am Rande des reizvollen Naturparks Schwalm-Nette liegt die Kreisstadt Viersen. Hier leben heute rund 76.000 Menschen in den vier Stadteilen Viersen, Süchteln, Dülken, Boisheim. Die Kreisstadt bietet besonders hohe Lebensqualität. Junge oder alte Menschen, Familien oder Singles profitieren von umfassenden Verwaltungsfunktionen, dem Service und dem spezialisierten Gesundheitsangebot vor Ort. Dank der schnellen Anbindungen über Autobahnen und Schienen nach Düsseldorf, zur Metropole Ruhr und zu den niederländischen Nachbarn sind von Viersen alle Wege kurz. Ideal für Pendler! Natur und pulsierendes Stadtleben sind in der Kreisstadt kein Widerspruch. Die niederrheinische Landschaft, wunderschöne Parks und große Grünanlagen lassen quasi die Grenzen zwischen der Stadt und dem Land verschwinden.
Die Innenstadt hat eine wunderschöne Fußgängerzone, die mit schönen Geschäften und Cafés zum Bummeln und verweilen einlädt. Über 100 Kunst und Kulturveranstaltungen sorgen für beste Unterhaltung. In der Viersener Festhalle begeisterten bereits Stars wie Nigel Kennedy, David Garrett und große Namen der Jazz-Szene ihr Publikum. Eine gute Infrastruktur mit Supermärkten, Metzgereien, Bäckereien, Banken, Stadtverwaltung, Ärzten, Krankenhaus, Kindergärten und Schulen sowie eine sehr gute Verkehrsanbindung sorgen für eine optimale Versorgung der in dieser Stadt und deren Umgebung lebenden Menschen.
All das ist fußläufig von Ihrer Immobilie zu erreichen.
Eine sehr gute Verkehrsanbindung sorgt darüber hinaus dafür, dass Sie überall hingelangen wenn Sie mal keine Lust haben zu Fuß zu gehen.


Wenn diese Immobilie Ihr Interesse geweckt hat, dann senden Sie uns bitte eine Kontaktanfrage per Mail.
Für Fragen oder einen persönlichen Besichtigungstermin stehen wir Ihnen gerne zur Verfügung.
Ich freue mich auf Sie
Tamara Dahmen
Bei aller Sorgfalt übernehmen wir ausdrücklich keine Gewähr für die Richtigkeit, Vollständigkeit und Aktualität vorstehender Angaben. Schadensersatzansprüche sind ausgeschlossen. Im Übrigen gelten unsere allgemeinen Geschäftsbedingungen für die Rechtsbeziehung zwischen Ihnen und Thielmann Immobilien. Es besteht ein gesetzliches Widerrufsrecht!




