*ERFOLGREICH VERMARKTET*
Modernisierte Doppelhaushälfte in ruhiger Lage von Amern - nähe Hariksee.
ca. 120 m² Wohnfläche
4 Schlafzimmer
Miete 1160€ zzgl. 110 € Nebenkosten (ohne Heizkosten)
2320 € Kaution (keine Provision)
Zimmer
5
Anzahl Bäder
1 x Bad
Bezugsfrei
ab sofort
Schlafzimmer
4
Balkon / Terrasse / Garten
1 x Terrasse/ kein Garten
Qualität Ausstattung Zustand
modernisiert
Heizung
Elektroheizung
Garage / Stellplatz
2 x Stellplatz
Energieausweis
Energieverbauch Klasse D -
122,4 kWh/(m²*a)
Beschreibung
In ruhiger Wohnlage von Amern, unweit des idyllischen Hariksees, erwartet Sie diese im Jahr 2025 modernisierte Doppelhaushälfte, welche ursprünglich im Jahr 1963 errichtet wurde.
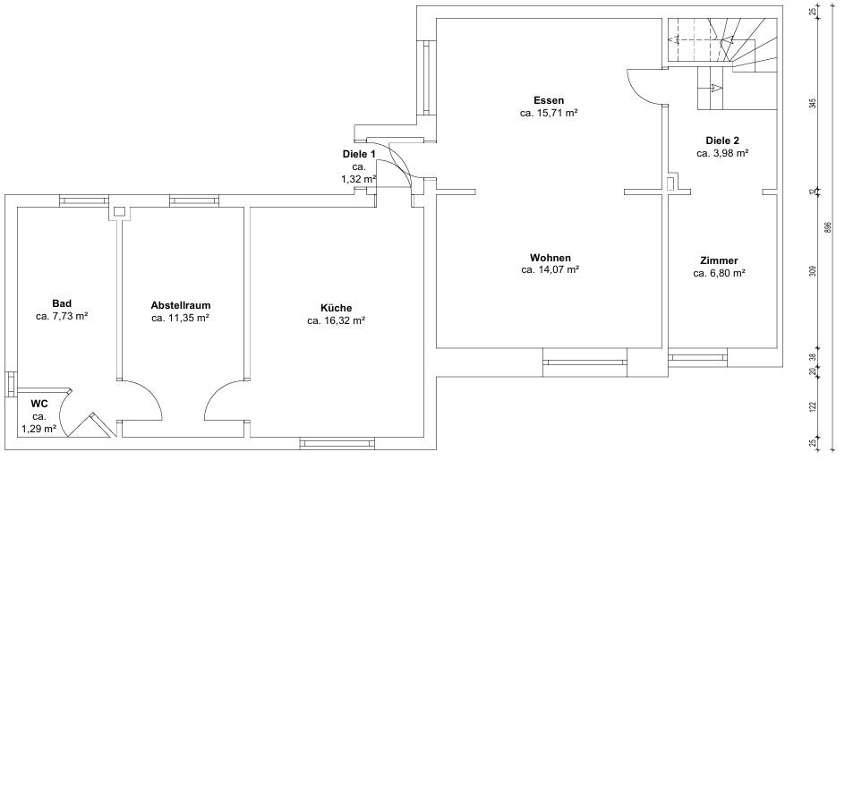
Im Erdgeschoss empfängt Sie ein geräumiger Wohnbereich, die Küche, ein Abstellraum, ein Schlafzimmer, das Bad sowie der Zugang zur Terrasse. Das Wohnzimmer enthält einen funktionsfähigen Kamin, welcher besonders im Winter für eine wohlige Atmosphäre sorgt. Im Obergeschoss befinden sich drei weitere Schlafzimmer.
Das Fenster im Bad wird noch durch ein Sichtschutzfenster ausgetauscht. Die Heizung läuft über Strom und ist dementsprechend nicht in den Nebenkosten enthalten.
Die Immobilie bietet zudem zwei PKW Stellplätze. Ein Garten ist nicht vorhanden, dafür eine großzügige Terrasse.
Lage
Frankenmühle 10, 41366 Schwalmtal
Eingebettet in einer Wald-, Seen und Auenlandschaft liegt Schwalmtal im Tal der Mühlen und bietet jedem, der sich mit Natur und dem Leben auf dem Lande verbunden fühlt, viel Reizvolles. Einen hohen Wohnwert, ein umfassendes Kindergarten- und Schulangebot, vielfältige Freizeitmöglichkeiten, Brauchtum, Feste und ein intaktes Vereinsleben finden Sie hier vor. Außerdem verfügen Sie über eine direkte Anbindung an die Städte Mönchengladbach, Krefeld und Düsseldorf.

Wenn diese Immobilie Ihr Interesse geweckt hat, dann senden Sie uns bitte eine Kontaktanfrage per Mail.
Für Fragen oder einen persönlichen Besichtigungstermin stehen wir Ihnen gerne zur Verfügung.
Ich freue mich auf Sie
Sven Thielmann
Bei aller Sorgfalt übernehmen wir ausdrücklich keine Gewähr für die Richtigkeit, Vollständigkeit und Aktualität vorstehender Angaben. Schadensersatzansprüche sind ausgeschlossen. Im Übrigen gelten unsere allgemeinen Geschäftsbedingungen für die Rechtsbeziehung zwischen Ihnen und Thielmann Immobilien. Es besteht ein gesetzliches Widerrufsrecht!





