*ERFOLGREICH VERMARKTET*
Vermietete Eigentumswohnung in zentraler Lage von Dülken.
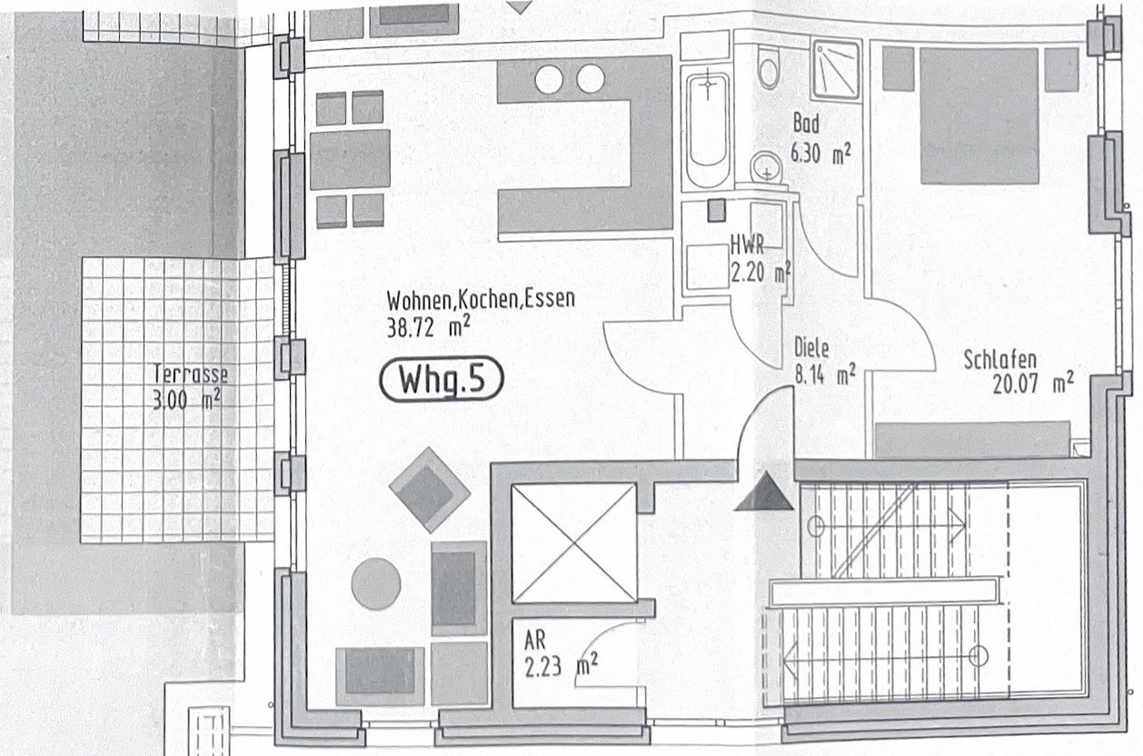
ca. 78 m² Wohnfläche
1 Schlafzimmer
ca. 340 € Hausgeld
225.000 €
zzgl. 3,57% Provision
Zimmer
2
Anzahl Bäder
1 x Bad
Bezugsfrei
aktuell vermietet / nach Vereinbarung
Schlafzimmer
1
Baujahr
2016
Qualität Ausstattung Zustand
guter Zustand
Heizung
Gas-Brennwertheizung (Bj. 2016)
Garage / Stellplatz
Stellplatz
Energieausweis
Klasse A 49 kWh/(m²*a) nach Energiebedarf
Beschreibung
In Viersen-Dülken befindet sich diese moderne Zweizimmer- Eigentumswohnung mit einer Wohnfläche von ca. 78 m². Das Gebäude, in dem sich die Wohnung befindet, wurde im Jahr 2016 in zentraler Lage von Dülken erbaut.
Die Immobilie umfasst ein großzügiges Schlafzimmer mit ca. 20 m². Der offene Wohn-, Koch- und Essbereich bietet direkten Zugang zur Dachterrasse. Das Badezimmer ist sowohl mit einer Badewanne als auch mit einer Dusche ausgestattet. Zusätzlich gehören zu dem Objekt ein Hauswirtschaftsraum sowie ein Abstellraum.
Ein Stellplatz ist vorhanden.
Lage
Westwall 20, 41751 Viersen
Am Rande des reizvollen Naturparks Schwalm-Nette liegt die Kreisstadt Viersen. Hier leben heute rund 76.000 Menschen in den vier Stadteilen Viersen, Süchteln, Dülken, Boisheim. Dülken ist mit gut 20.000 Einwohnern nach Alt-Viersen der zweitgrößte Stadtteil. Eine gute Infrastruktur mit Schulen, Kindergärten, Supermärkten, Metzgereien, Bäckereien, Banken, und Ärzten sowie eine sehr gute Verkehrsanbindung sorgen für eine optimale Versorgung der in dieser Stadt und deren Umgebung lebenden Menschen.

Wenn diese Immobilie Ihr Interesse geweckt hat und Sie gerne unverbindlich nähere Informationen oder einen Besichtigungstermin wünschen, dann senden Sie uns eine Kontaktanfrage.
Gerne beraten wir Sie auch im Bereich der Finanzierung. Mit einem Pool von über 400 Banken und einem starken Kooperationspartner an unserer Seite, können wir Ihnen Finanzierungsmöglichkeiten anbieten, welche perfekt auf Sie und Ihre Lebenssituation zugeschnitten sind. Die Beratung hierzu ist komplett unverbindlich und kostenlos!
Ich freue mich auf Sie
Rainer Thielmann
Bei unserem Angebot handelt es sich um ein provisionspflichtiges Kaufangebot im qualifizierten Alleinauftrag des Eigentümers. Die vom Käufer zu zahlende Maklerprovision von 3,57% ist zahlbar mit dem Abschluss eines durch unseren Nachweis und / oder Vermittlung zustande gekommenen Kaufvertrages. Den Zwischenverkauf behalten wir uns vor. Bei aller Sorgfalt übernehmen wir ausdrücklich keine Gewähr für die Richtigkeit, Vollständigkeit und Aktualität vorstehender Angaben. Schadensersatzansprüche sind ausgeschlossen. Im Übrigen gelten unsere allgemeinen Geschäftsbedingungen für die Rechtsbeziehung zwischen Ihnen und Thielmann Immobilien. Der Makler-Vertrag mit uns kommt durch schriftliche Vereinbarung oder durch die Inanspruchnahme unserer Maklertätigkeit auf der Basis des Objekt Exposés und seiner Bedingungen zustande. Die Käufercourtage auf den Kaufpreis ist bei notariellem Vertragsabschluss verdient und fällig. Es besteht ein gesetzliches Widerrufsrecht!




