ERFOLGREICH VERMARKTET
Viel Platz und besonderen Charme bietet dieses Reihenhaus in Dülken
Wohnfläche ca. 201 m²
6 Schlafzimmer
112 m² Grundstück
235.000 €
zzgl. 3,57% Provision
Zimmer
7
Anzahl Bäder
2
Bezugsfrei
ab sofort
Schlafzimmer
6
Baujahr
1927
Qualität Ausstattung Zustand
Renovierungs- / modernisierungsbedürftig
Heizung
Gasheizung Bj. 1999
Garage / Stellplatz
nicht vorhanden - öffentliche Stellplätze vor der Tür
Energieausweis
Energieausweis nach Bedarf
119,8 kWh/(m²*a) - Klasse D

Beschreibung
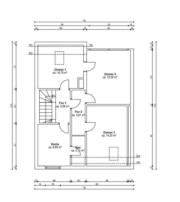
Zum Verkauf steht dieses großzügige Reihenmittelhaus aus dem Jahr 1927, das durch seinen prachtvollen Charme vergangener Zeiten besticht. Auf insgesamt 201 m² Wohnfläche bieten sich Ihnen 7 Zimmer, darunter 6 Schlafzimmer, die viel Raum für Ihre individuellen Wohnträume lassen. Das Grundstück misst 112 m² und verfügt über eine gemütliche Terrasse, ideal für entspannte Stunden im Freien, auch wenn ein Garten nicht vorhanden ist.
Der große Wohn-Essbereich, ausgestattet mit hochwertigem Echtholzparkett, ist das Herzstück dieser Immobilie und lädt zum Verweilen ein. Die Gasheizung, installiert im Jahr 1999, sorgt für behagliche Wärme in den kälteren Monaten. Die Elektronik des Hauses wurde bereits überholt, jedoch befindet sich das Badezimmer in einem modernisierungsbedürftigen Zustand. Auch die übrigen Räumlichkeiten bedürfen einer Renovierung und bieten Ihnen die Möglichkeit, Ihre persönlichen Vorstellungen von Komfort und Stil zu verwirklichen.
Die Lage der Immobilie ist besonders attraktiv, da sie sich in unmittelbarer Nähe zum Bahnhof befindet und somit eine hervorragende Anbindung an den öffentlichen Nahverkehr bietet. Diese einzigartige Gelegenheit im Jugendstilhaus wartet auf Ihre kreative Gestaltung und persönlichen Akzent.
Lage
Heinz - Luhnen - Straße 23, 41751 Viersen Dülken
Am Rande des reizvollen Naturparks Schwalm-Nette liegt die Kreisstadt Viersen. Hier leben heute rund 76.000 Menschen in den vier Stadteilen Viersen, Süchteln, Dülken, Boisheim. Dülken ist mit gut 20.000 Einwohnern nach Alt-Viersen der zweitgrößte Stadtteil. Eine gute Infrastruktur mit Schulen, Kindergärten, Supermärkten, Metzgereien, Bäckereien, Banken, und Ärzten sowie eine sehr gute Verkehrsanbindung sorgen für eine optimale Versorgung der in dieser Stadt und deren Umgebung lebenden Menschen.

Wenn diese Immobilie Ihr Interesse geweckt hat und Sie gerne unverbindlich nähere Informationen oder einen Besichtigungstermin wünschen, dann senden Sie uns eine Kontaktanfrage.
Gerne beraten wir Sie auch im Bereich der Finanzierung. Mit einem Pool von über 400 Banken und einem starken Kooperationspartner an unserer Seite, können wir Ihnen Finanzierungsmöglichkeiten anbieten, welche perfekt auf Sie und Ihre Lebenssituation zugeschnitten sind. Die Beratung hierzu ist komplett unverbindlich und kostenlos!
Ich freue mich auf Sie
Sven Thielmann
Bei unserem Angebot handelt es sich um ein provisionspflichtiges Kaufangebot im qualifizierten Alleinauftrag des Eigentümers. Die vom Käufer zu zahlende Maklerprovision in Höhe von 3,57% ist zahlbar mit dem Abschluss eines durch unseren Nachweis und / oder Vermittlung zustande gekommenen Kaufvertrages. Den Zwischenverkauf behalten wir uns vor. Bei aller Sorgfalt übernehmen wir ausdrücklich keine Gewähr für die Richtigkeit, Vollständigkeit und Aktualität vorstehender Angaben. Schadensersatzansprüche sind ausgeschlossen. Im Übrigen gelten unsere allgemeinen Geschäftsbedingungen für die Rechtsbeziehung zwischen Ihnen und Thielmann Immobilien. Der Makler-Vertrag mit uns kommt durch schriftliche Vereinbarung oder durch die Inanspruchnahme unserer Maklertätigkeit auf der Basis des Objekt Exposés und seiner Bedingungen zustande. Die Käufercourtage auf den Kaufpreis ist bei notariellem Vertragsabschluss verdient und fällig. Es besteht ein gesetzliches Widerrufsrecht!





