ERFOLGREICH VERMARKTET
Freistehendes Einfamilienhaus in idyllischer Lage von Schwalmtal-Schagen
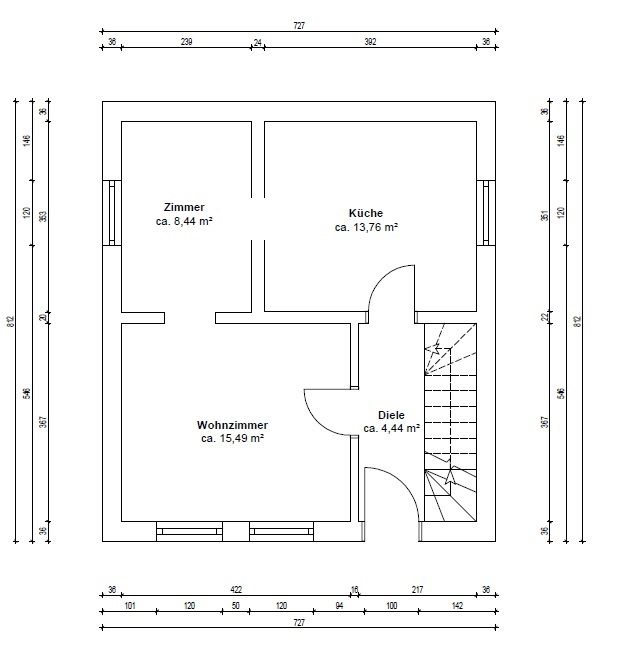
95 m² Wohnfläche
3 Schlafzimmer
686 m² Grundstück
210.000 €
zzgl. 3,57% Provision
Zimmer
5
Anzahl Bäder
1 x Bad im Obergeschoss, 1 x Bad im Keller, WC im Anbau
Bezugsfrei
ab sofort
Schlafzimmer
3
Baujahr
1935
Qualität Ausstattung Zustand
Gepflegt, modernisierungsbedürftig
Heizung
Ölheizung Bj. 2008
Garage / Stellplatz
Stellplatz + Garage
Energieausweis
Klasse H 386,5 kWh/(m²*a) nach Energiebedarf

Beschreibung
Traumhaftes Einfamilienhaus in idyllischer Lage von Schwalmtal Schagen
Entdecken Sie dieses freistehende Einfamilienhaus, das Ihnen die perfekte Kombination aus Ruhe und Natur bietet. Umgeben von einer malerischen Landschaft, erwartet Sie ein traumhafter Garten mit Blick ins Grüne auf einem großzügigen Grundstück von 686 m², das ideal zur Sonne ausgerichtet ist.
Das Haus verfügt über eine Wohnfläche von 95 m² und bietet Ihnen drei gemütliche Schlafzimmer, mit ausreichend Platz für die kleine Familie. Das Dachgeschoss bietet Ihnen weitere Ausbaureserve. Das Badezimmer wurde vor wenigen Jahren erneuert und befindet sich in einem gepflegten Zustand. Das gesamte Haus ist gut erhalten, jedoch entspricht die Elektronik nicht mehr dem heutigen Standard.
Es gibt einen Anbau am Haus Richtung Garten, der die Öltanks beherbergt und zusätzliche Staufläche sowie ein WC bietet. Von hier aus gelangen Sie über den Partyraum direkt auf die Terrasse und in den Garten. Der Zugang hierzu ist durch den Keller. Aktuell ist dies die einzige Zuwegung, um vom Haus direkt in den Garten zu gelangen. Es besteht jedoch die Möglichkeit, den Anbau zu entfernen, um eine direkte Verbindung zwischen Haus und Außenbereich zu schaffen.
Das Grundstück wird noch mit einem Zaun zum Nachbarn unterteilt. Der hintere Gartenteil des Nachbarn ist bereits durch einen kleinen Zaun getrennt. Eine Garage sowie ein Stellplatz sind ebenfalls vorhanden, und vor der Garage besteht die Möglichkeit, ein Wohnmobil zu parken.
Die Ölheizung wurde 2008 installiert. Der Keller hat eine Grundfeuchtigkeit, was bei der Besichtigung berücksichtigt werden sollte.
Nutzen Sie die Gelegenheit, dieses charmante Einfamilienhaus in einer der schönsten Lagen von Schwalmtal Schagen zu Ihrem neuen Zuhause zu machen! Bei Interesse oder für weitere Informationen stehen wir Ihnen gerne zur Verfügung.
Lage
Eingebettet in einer Wald-, Seen und Auenlandschaft liegt Schwalmtal im Tal der Mühlen und bietet jedem, der sich mit Natur und dem Leben auf dem Lande verbunden fühlt, viel Reizvolles. Einen hohen Wohnwert, ein umfassendes Kindergarten- und Schulangebot, vielfältige Freizeitmöglichkeiten, Brauchtum, Feste und ein intaktes Vereinsleben finden Sie hier vor. Außerdem verfügen Sie über eine direkte Anbindung an die Städte Mönchengladbach, Krefeld und Düsseldorf

Wenn diese Immobilie Ihr Interesse geweckt hat und Sie gerne unverbindlich nähere Informationen oder einen Besichtigungstermin wünschen, dann senden Sie uns eine Kontaktanfrage.
Gerne beraten wir Sie auch im Bereich der Finanzierung. Mit einem Pool von über 400 Banken und einem starken Kooperationspartner an unserer Seite, können wir Ihnen Finanzierungsmöglichkeiten anbieten, welche perfekt auf Sie und Ihre Lebenssituation zugeschnitten sind. Die Beratung hierzu ist komplett unverbindlich und kostenlos!
Ich freue mich auf Sie
Sven Thielmann
Bei unserem Angebot handelt es sich um ein provisionspflichtiges Kaufangebot im qualifizierten Alleinauftrag des Eigentümers. Die vom Käufer zu zahlende Maklercourtage ist zahlbar mit dem Abschluss eines durch unseren Nachweis und / oder Vermittlung zustande gekommenen Kaufvertrages. Den Zwischenverkauf behalten wir uns vor. Bei aller Sorgfalt übernehmen wir ausdrücklich keine Gewähr für die Richtigkeit, Vollständigkeit und Aktualität vorstehender Angaben. Schadensersatzansprüche sind ausgeschlossen. Im Übrigen gelten unsere allgemeinen Geschäftsbedingungen für die Rechtsbeziehung zwischen Ihnen und Thielmann Immobilien. Der Makler-Vertrag mit uns kommt durch schriftliche Vereinbarung oder durch die Inanspruchnahme unserer Maklertätigkeit auf der Basis des Objekt Exposés und seiner Bedingungen zustande. Die Käufercourtage auf den Kaufpreis ist bei notariellem Vertragsabschluss verdient und fällig. Es besteht ein gesetzliches Widerrufsrecht!




