Ein echtes Platzwunder - Reihenendhaus für die große Familie in Grefrath - Oedt!
Wohnfläche ca. 148,16 m²
4 Schlafzimmer
438 m² Grundstück
294.000 €
zzgl. 3,57% Provision
Zimmer
5
Anzahl Bäder
2 Badezimmer + 1 x G-WC
Bezugsfrei
ab sofort
Schlafzimmer
4
Baujahr
1977
Qualität Ausstattung Zustand
gepflegt
Heizung
Gasbrennwertheizung + Hybridkaminofen Bj. 2013
Garage / Stellplatz
2 x Außenstellplätze + Garage
Energieausweis
Energieverbrauch 94 kWh/(m²*a) - Klasse C
Beschreibung
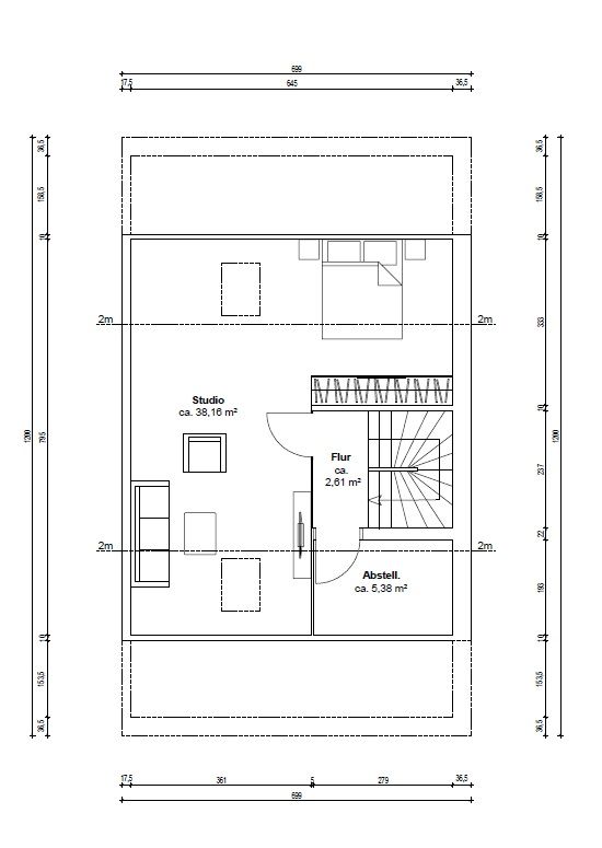
Dieses großzügige Reiheneckhaus ist ein echtes Platzwunder und eignet sich ideal für die große Familie. Insgesamt stehen Ihnen vier Schlafzimmer bei einer Wohnfläche von 146,16 m² zzgl. 46,15 m² Nutzfläche (ausgebautes Studio) zur Verfügung. Das Studio lässt sich sogar optimal teilen, so dass man ein weiteres Schlafzimmer /Büro dazugewinnen könnte.
Das Objekt wurde im Jahre 1977 in massiver Bauweise auf dem 438 m² großen Sonnengrundstück errichtet. Es befindet sich in einem gepflegten Zustand. Bei Einzug fallen lediglich Renovierungsarbeiten an. Die zwei Bäder sind optisch nicht mehr ganz zeitgemäß und könnten modernisiert werden.
Im 1. Obergeschoss befinden sich Anschlüsse für eine Küche (auf den Bildern hinter dem weißen Einbauschrank). Dieses Haus bietet Ihnen damit sogar die Option einer Einliegerwohnung mit einem eigenen Bad und Balkon.
Im geräumigen Wohn- und Esszimmer befindet sich ein Hybrid-Kaminofen, welcher mit der Heizung gekoppelt ist. Wenn Sie mit dem Ofen heizen, wird gleichzeitig Wasser für die Heizung erwärmt. Dies macht sich deutlich im Energieverbrauch bemerkbar.
Die vorhandene Einbauküche wird nicht mit verkauft. Die Immobilie ist vollunterkellert und bietet einen geräumigen Hobbyraum. Es gibt zwei PKW-Stellplätze und eine Garage. Das Grundstück ist komplett umzäunt.
Lage
Grefrath-Oedt
Die Immobilie befindet sich in Grefrath-Oedt in einer familienfreundlichen Wohngegend. Einrichtungen für den täglichen Bedarf befinden sich in unmittelbarer Nähe zum Haus. Dank der schnellen Anbindungen über Autobahnen nach Düsseldorf und zur Metropole Ruhr sind von Oedt alle Wege kurz. Ideal für Pendler!

Wenn diese Immobilie Ihr Interesse geweckt hat und Sie gerne unverbindlich nähere Informationen oder einen Besichtigungstermin wünschen, dann senden Sie uns eine Kontaktanfrage.
Gerne beraten wir Sie auch im Bereich der Finanzierung. Mit einem Pool von über 400 Banken und einem starken Kooperationspartner an unserer Seite, können wir Ihnen Finanzierungsmöglichkeiten anbieten, welche perfekt auf Sie und Ihre Lebenssituation zugeschnitten sind. Die Beratung hierzu ist komplett unverbindlich und kostenlos!
Ich freue mich auf Sie
Rainer Thielmann
Bei unserem Angebot handelt es sich um ein provisionspflichtiges Kaufangebot im qualifizierten Alleinauftrag des Eigentümers. Die vom Käufer zu zahlende Maklercourtage ist zahlbar mit dem Abschluss eines durch unseren Nachweis und / oder Vermittlung zustande gekommenen Kaufvertrages. Den Zwischenverkauf behalten wir uns vor. Bei aller Sorgfalt übernehmen wir ausdrücklich keine Gewähr für die Richtigkeit, Vollständigkeit und Aktualität vorstehender Angaben. Schadensersatzansprüche sind ausgeschlossen. Im Übrigen gelten unsere allgemeinen Geschäftsbedingungen für die Rechtsbeziehung zwischen Ihnen und Thielmann Immobilien. Der Makler-Vertrag mit uns kommt durch schriftliche Vereinbarung oder durch die Inanspruchnahme unserer Maklertätigkeit auf der Basis des Objekt Exposés und seiner Bedingungen zustande. Die Käufercourtage auf den Kaufpreis ist bei notariellem Vertragsabschluss verdient und fällig. Es besteht ein gesetzliches Widerrufsrecht!

 
  
  
  
  
  
  
  
  
  
  
  
  
  
  
  
  
  
  
  
  
  
  
  
  
  
  
  
  
  
  
  
  
  
  
  
  
  
  
  
  
  
  
  
  
  
  
  
  
  
  
  
  
  
  
  
  
  
  
  
  
  
  
  
  
  
  
  
  
  
  
  
  
  
 


