ERFOLGREICH VERMARKTET
Modernes Reihenhaus mit viel Platz für die ganze Familie in Nettetal-Breyell
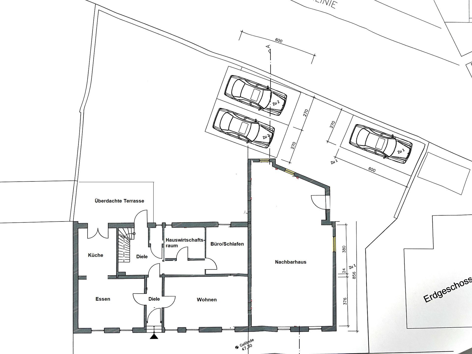
165 m² Wohnfläche
5 Schlafzimmer
1400 € Miete 180 € NK (ohne Heizung)
2 Monatskaltmieten Kaution
keine Provision
Zimmer
7
Anzahl Bäder
1 x Bad, 1 x Gäste - WC
Bezugsfrei
01.05.2024
Schlafzimmer
5
Balkon / Terrasse
Terrasse + Garten
Qualität Ausstattung
Modernisiert, guter Zustand
Heizung
Gasheizung
Garage / Stellplatz
2 x PKW Stellplatz
Energieausweis
Liegt zur Besichtigung vor
Beschreibung
Hinweis vorab: Hinter dem Garten befinden sich Bahnschienen mit regelmäßigen Bahnverkehr.
Zur Vermietung steht dieses moderne Reihenhaus, welches mit seinen ca. 165 m² Wohnfläche ein echtes Platzwunder ist. Ideal für die große Familie!
Insgesamt stehen Ihnen 5 Schlafzimmer zur Verfügung. Im Erdgeschoss gibt es ein geräumiges Wohnzimmer und eine Küche die zum großen Esszimmer hin geöffnet ist. Die vorhandene Einbauküche kann optional von den Vormietern übernommen werden (Preis VB). Eine moderne Ausstattung finden Sie u.a. in den Böden und Badezimmer wieder. Geheizt wird über eine Gasheizung. Haustiere sind willkommen! Im Innenhof stehen Ihnen 1-2 PKW -Stellplätze zur Verfügung, welche bereits im Mietpreis enthalten sind.
Lage
Fongern 4, 41334 Nettetal - Breyell
Das Objekt befindet sich im niederrheinischen Breyell, einem Ortsteil von Nettetal in einem Wohngebiet mit unmittelbarer Nähe zur Natur. Die besondere Lage und die die direkte Anbindung an den Naturpark Schwalm-Nette mit seinen zahlreichen Seen und Landschaften bietet einen hohen Wohn- und Freizeitwert.
Breyell liegt nah an der deutschen Grenze zu den
Niederlanden. Dank der schnellen Anbindungen über Autobahnen und Schienen nach Düsseldorf, zur Metropole Ruhr und zu den niederländischen Nachbarn sind von Breyell alle Wege kurz. Ideal für Pendler! Eine gute Infrastruktur mit Supermärkten, Metzgereien, Bäckereien, Banken, Ärzten, Kindergärten und Schulen sowie eine sehr gute Verkehrsanbindung sorgen für eine optimale Versorgung der in dieser Stadt und deren Umgebung lebenden Menschen.
Eine sehr gute Verkehrsanbindung sorgt darüber hinaus dafür, dass Sie überall hingelangen wenn Sie mal keine Lust haben zu Fuß zu gehen.

Wenn diese Immobilie Ihr Interesse geweckt hat, dann senden Sie uns einfach eine Kontaktanfrage!
Für Rückfragen oder einen persönlichen Besichtigungstermin stehen wir Ihnen gerne zur Verfügung.
Ich freue mich auf Sie
Sven Thielmann
Bei aller Sorgfalt übernehmen wir ausdrücklich keine Gewähr für die Richtigkeit, Vollständigkeit und Aktualität vorstehender Angaben. Schadensersatzansprüche sind ausgeschlossen. Im Übrigen gelten unsere allgemeinen Geschäftsbedingungen für die Rechtsbeziehung zwischen Ihnen und Thielmann Immobilien. Es besteht ein gesetzliches Widerrufsrecht!




