**ERFOLGREICH VERKAUFT**
Freistehendes Einfamilienhaus in bester Lage von Nettetal - Lobberich - Baujahr 2022 nach KfW 55
154,75 m² Wohnfläche
4 Schlafzimmer
509 m² Grundstück
550.000 €
zzgl. 3,57% Provision
Zimmer
5
Anzahl Bäder
2
Bezugsfrei
01. April 2024
Schlafzimmer
4
Baujahr
2022
Qualität Ausstattung Zustand
gehoben, sehr gut, neuwertig
Heizung
Wärmepumpe Bj. 2022
Garage / Stellplatz
2 Stellplätze, Garage
Energieausweis
Klasse A+ 22 kWh/(m²*a) nach Bedarf
Beschreibung
In einem modernen Neubaugebiet in Nettetal Lobberich, welches erst vor wenigen Jahren erschlossen wurde, befindet sich dieses ansprechende freistehende Einfamilienhaus.
Erst 2022 wurde dieses Objekt als Fertighaus auf dem 509 m² großen Grundstück errichtet und befindet sich daher in einem sehr guten und neuwertigen Zustand.
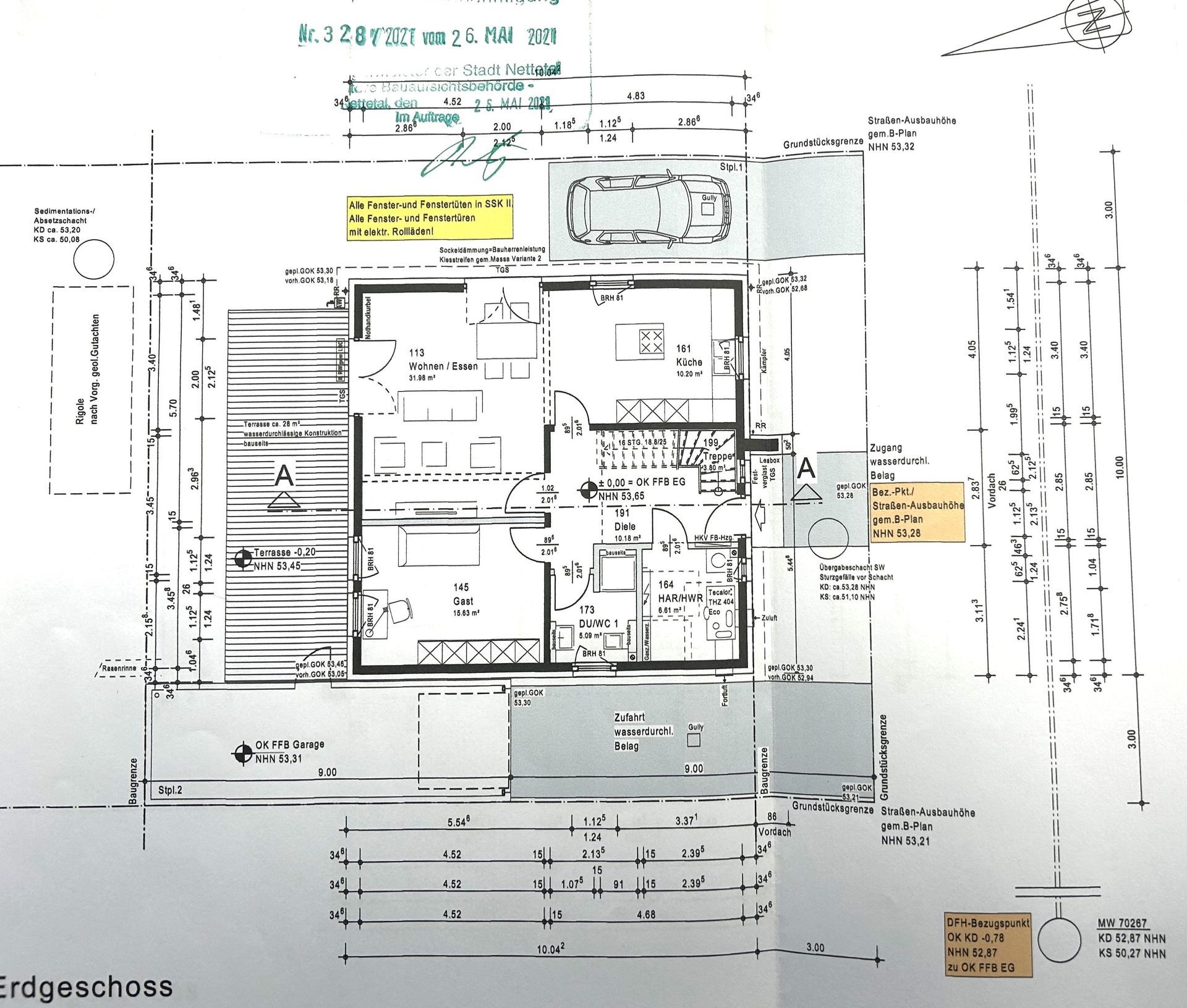
Mit einer Wohnfläche von 154,75 m² und insgesamt 4 Schlafzimmern, ist diese Immobilie das perfekte Familienhaus.
Drei Schlafzimmer, ein Ankleidezimmer, sowie ein Badezimmer befinden sich im Obergeschoss.
Im Erdgeschoss haben Sie einen geräumigen Eingangsbereich, welcher zur oberen Etage hin geöffnet ist. Neben dem großen Wohn- & Essbereich mit der offenen Küche, gibt es im Erdgeschoss ein weiteres Schlafzimmer und ein Badezimmer mit Dusche. Der Hauswirtschaftsraum mit der modernen Heizungsanlage (Wärmepumpe) befindet sich ebenfalls auf dieser Ebene. Die vorhandene Einbauküche ist im Kaufpreis enthalten. Es gibt eine Garage mit einem zusätzlichen Abstellraum. Der Terrassenbereich ist großzügig überdacht und lässt selbst bei Regen keine Grillparty ausfallen.
Lage
Das Haus befindet sich in einem ruhigen und modernen Wohngebiet mit ansprechenden Immobilien in direkter Nachbarschaft. Einkaufsmöglichkeiten befinden sich in direkter Umgebung. Schulen und Kindergärten sind unmittelbar mit kurzen Wegen per Bus oder zu Fuß zu erreichen. Dank der schnellen Anbindungen über Autobahnen und Schienen nach Düsseldorf, zur Metropole Ruhr und zu den niederländischen Nachbarn sind von Lobberich alle Wege kurz. Ideal für Pendler! Die Innenstadt hat eine wunderschöne Fußgängerzone, die mit schönen Geschäften und Cafés welche zum Bummeln und verweilen einlädt. Eine gute Infrastruktur mit Supermärkten, Metzgereien, Bäckereien, Banken, Ärzten, Kindergärten und Schulen sowie eine sehr gute Verkehrsanbindung sorgen für eine optimale Versorgung der in dieser Stadt und deren Umgebung lebenden Menschen.
All das ist fußläufig von Ihrer Immobilie zu erreichen.

Wenn diese Immobilie Ihr Interesse geweckt hat und Sie gerne unverbindlich nähere Informationen oder einen Besichtigungstermin wünschen, dann senden Sie uns eine Kontaktanfrage.
Gerne beraten wir Sie auch im Bereich der Finanzierung. Mit einem Pool von über 400 Banken und einem starken Kooperationspartner an unserer Seite, können wir Ihnen Finanzierungsmöglichkeiten anbieten, welche perfekt auf Sie und Ihre Lebenssituation zugeschnitten sind. Die Beratung hierzu ist komplett unverbindlich und kostenlos!
Ich freue mich auf Sie
Sven Thielmann
Bei unserem Angebot handelt es sich um ein provisionspflichtiges Kaufangebot im qualifizierten Alleinauftrag des Eigentümers. Die vom Käufer zu zahlende Maklercourtage ist zahlbar mit dem Abschluss eines durch unseren Nachweis und / oder Vermittlung zustande gekommenen Kaufvertrages. Den Zwischenverkauf behalten wir uns vor. Bei aller Sorgfalt übernehmen wir ausdrücklich keine Gewähr für die Richtigkeit, Vollständigkeit und Aktualität vorstehender Angaben. Schadensersatzansprüche sind ausgeschlossen. Im Übrigen gelten unsere allgemeinen Geschäftsbedingungen für die Rechtsbeziehung zwischen Ihnen und Thielmann Immobilien. Der Makler-Vertrag mit uns kommt durch schriftliche Vereinbarung oder durch die Inanspruchnahme unserer Maklertätigkeit auf der Basis des Objekt Exposés und seiner Bedingungen zustande. Die Käufercourtage auf den Kaufpreis ist bei notariellem Vertragsabschluss verdient und fällig. Es besteht ein gesetzliches Widerrufsrecht!




