Platzwunder - Ideal für große Familien - Doppelhaushälfte inkl. Doppelgarage in Tönisvorst-Vorst.
204 m² Wohnfläche
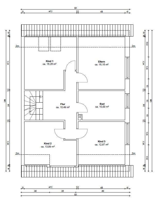
6 Schlafzimmer
559 m² Grundstück
350.000 €
zzgl. 3,57% Provision
Zimmer
7
Anzahl Bäder
2
Bezugsfrei
nach Vereinbarung
Schlafzimmer
6
Baujahr
1981
Qualität Ausstattung
Normal - Renovierungsbedürftig
Heizung
Gasheizung Buderus Bj.1999
Garage / Stellplatz
Doppelgarage
Energieausweis
Klasse E - 153,6 kWh/(m²*a)
Beschreibung
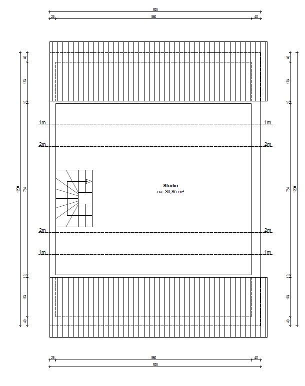
Zum Verkauf steht diese geräumige Doppelhaushälfte (versetzter Anbau zum Nachbarn) mit einer Wohnfläche von 204 m², welche 1981 in massiver Bauweise auf dem 559m² großen Grundstück nebst einer Doppelgarage errichtet wurde. Mit insgesamt 6 Schlafzimmern ist dieses Haus perfekt für die große Familie. Auch der Keller bietet viele Nutzungsmöglichkeiten. Hier finden Sie einen Party- und Hobbyraum, sowie ein Souterrainzimmer, welches sich perfekt als Büro eignet.
1999 wurde die jetzige Gasheizung von Buderus verbaut. Die Fenster im Haus sind aus Holz und isolierverglast. Der Zustand des Objektes ist renovierungsbedürftig. Der Keller stand zuletzt ein wenig unter Wasser, da die Pumpe nicht richtig abgepumpt hat. Entsprechende Wasserstellen sind daher noch zu erkennen. Eine Grundfeuchtigkeit ist grundsätzlich vorhanden. Die Nutzbarkeit ist davon jedoch nicht eingeschränkt.
Lage
Das Objekt befindet sich in einer ruhigen Wohngegend von Tönisvorst - Vorst auf einem traumhaften Sonnengrundstück.
Einrichtungen für den täglichen Bedarf sind fußläufig zu erreichen. Eine gute Verkehrsanbindung ist gegeben.

Wenn diese Immobilie Ihr Interesse geweckt hat und Sie gerne unverbindlich nähere Informationen oder einen Besichtigungstermin wünschen, dann senden Sie uns eine Kontaktanfrage.
Gerne beraten wir Sie auch im Bereich der Finanzierung. Mit einem Pool von über 400 Banken und einem starken Kooperationspartner an unserer Seite, können wir Ihnen Finanzierungsmöglichkeiten anbieten, welche perfekt auf Sie und Ihre Lebenssituation zugeschnitten sind. Die Beratung hierzu ist komplett unverbindlich und kostenlos!
Ich freue mich auf Sie
Sven Thielmann
Bei unserem Angebot handelt es sich um ein provisionspflichtiges Kaufangebot im qualifizierten Alleinauftrag des Eigentümers. Die vom Käufer zu zahlende Maklercourtage ist zahlbar mit dem Abschluss eines durch unseren Nachweis und / oder Vermittlung zustande gekommenen Kaufvertrages. Den Zwischenverkauf behalten wir uns vor. Bei aller Sorgfalt übernehmen wir ausdrücklich keine Gewähr für die Richtigkeit, Vollständigkeit und Aktualität vorstehender Angaben. Schadensersatzansprüche sind ausgeschlossen. Im Übrigen gelten unsere allgemeinen Geschäftsbedingungen für die Rechtsbeziehung zwischen Ihnen und Thielmann Immobilien. Der Makler-Vertrag mit uns kommt durch schriftliche Vereinbarung oder durch die Inanspruchnahme unserer Maklertätigkeit auf der Basis des Objekt Exposés und seiner Bedingungen zustande. Die Käufercourtage auf den Kaufpreis ist bei notariellem Vertragsabschluss verdient und fällig. Es besteht ein gesetzliches Widerrufsrecht!

 
  
  
  
  
  
  
  
  
  
  
  
  
  
  
  
  
  
  
  
  
  
  
  
  
  
  
  
  
  
  
  
  
  
  
  
  
  
  
  
  
  
  
  
  
  
  
  
  
  
  
  
 


