Nettetal-Breyell
Doppelhaushälfte mit schöner Dachterrasse in Breyell
| ZIMMER | SCHLAFZIMMER | BADEZIMMER | PARKEN |
|---|---|---|---|
| 3 | 2 | 1 | 1 Stellplatz |
| HEIZUNG | ZUSTAND | BEZUGSFREI | HIGHLIGHTS |
|---|---|---|---|
| Gas-Heizung | Gepflegt | Nach Vereinbarung | Dachterrasse, Garten |
Energieausweis
Bei Thielmann Immobilien legen wir großen Wert auf Transparenz. Für jede von uns angebotene Immobilie stellen wir die relevanten Angaben zum Energiebedarf bzw. -verbrauch bereit. Der Energieausweis informiert über die Energieeffizienz eines Gebäudes und ist sowohl für Käufer*innen als auch für Banken bei der Finanzierungsprüfung von Bedeutung. Gerne beraten wir Sie persönlich zur Bedeutung des Energieausweises in Ihrem Immobilienkauf.
Beschreibung
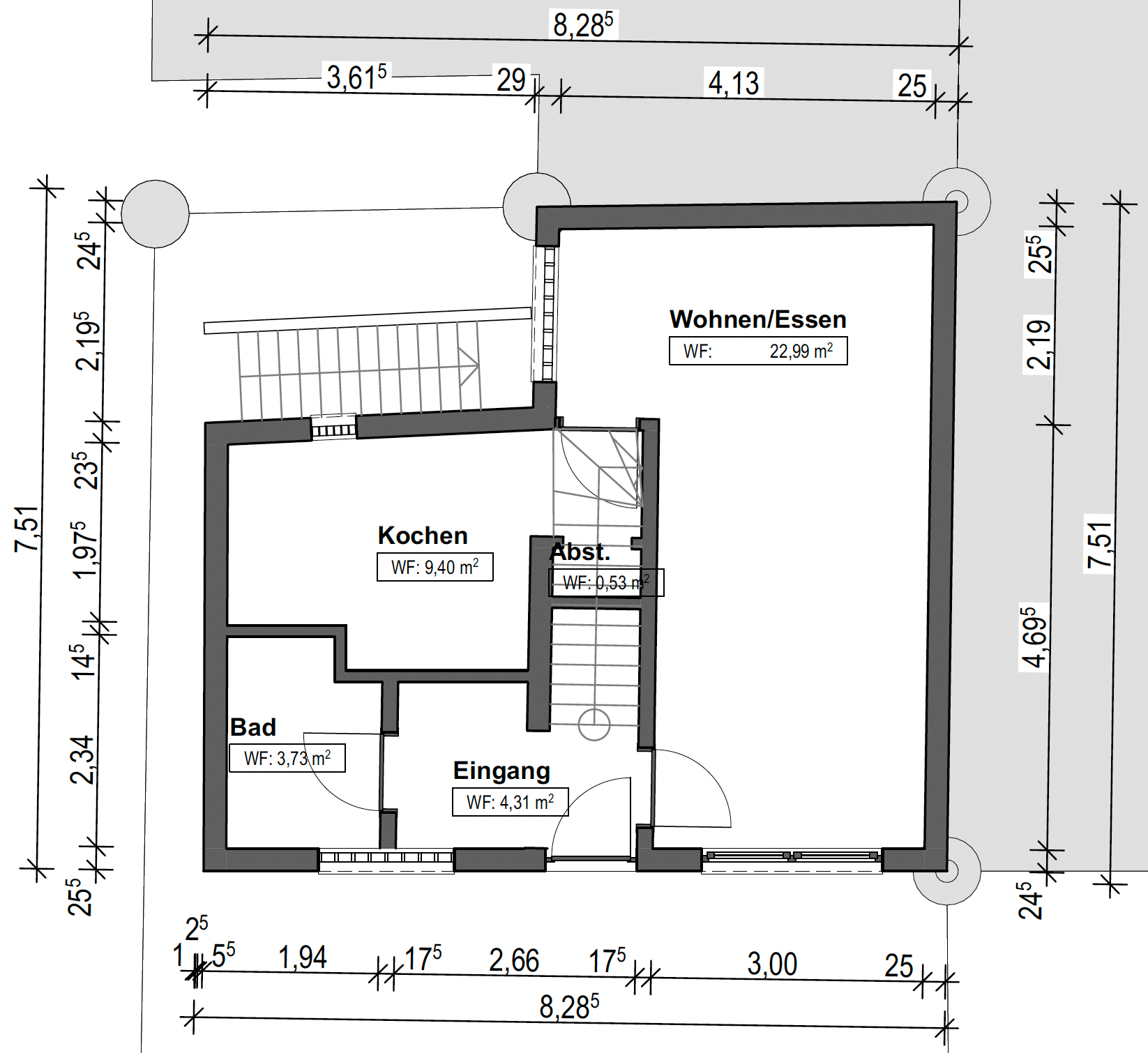
Dieses gepflegte Reihenendhaus überzeugt durch seine gemütliche Wohnatmosphäre, eine durchdachte Raumaufteilung und den liebevoll angelegten Außenbereich.
Mit einer Wohnfläche von ca. 69 m² und einer Nutzfläche von rund 114 m² auf einem Grundstück von ca. 160 m² bietet die Immobilie ideale Voraussetzungen für Paare oder kleine Familien.
Im Erdgeschoss erwartet Sie ein heller Wohn- und Essbereich, der eine angenehme Wohnatmosphäre schafft und ausreichend Platz für gemütliche Stunden bietet.
Die angrenzende Küche ist funktional geschnitten und fügt sich harmonisch in den Grundriss ein.
Ebenfalls im Erdgeschoss befindet sich das modern gestaltete Badezimmer mit Dusche und Tageslicht.
Im Obergeschoss stehen Ihnen zwei Schlafzimmer und der Balkon zur Verfügung, ideal als Elternschlafzimmer und Kinderzimmer oder Home-Office.
Der ausgebaute Dachboden bietet zusätzlichen Raum, der sich flexibel als Arbeits-, Gäste- oder Hobbybereich nutzen lässt.
Darüber hinaus verfügt das Haus über einen Keller mit praktischen Abstellmöglichkeiten.
Ein Stellplatz direkt vor dem Haus sorgt für komfortables Parken, während der kleine Vorgarten den einladenden Gesamteindruck des Hauses abrundet.
Lage
41334 Nettetal, Breyell
Der Ortsteil Breyell gehört zur Stadt Nettetal im Westen Nordrhein-Westfalens, nahe der niederländischen Grenze. Die Region zeichnet sich durch ihre verkehrsgünstige Lage, wirtschaftsfreundliche Strukturen und eine hohe Lebensqualität aus.
Die Halle liegt in unmittelbarer Nähe zur A61, einer der wichtigsten Nord-Süd-Verbindungen des westlichen NRW. Über das nur ca. 5 Minuten entfernte Autobahnkreuz Nettetal sind die Großräume Mönchengladbach, Düsseldorf und Venlo (NL) schnell erreichbar.
Der Bahnhof Breyell bietet Regionalzug-Anbindung (z. B. in Richtung Mönchengladbach und Viersen), Busverbindungen sind ebenfalls vorhanden
Grundrisse
Jetzt direkt Grundrisse ansehen - folgen in Kürze:
Ihr Ansprechpartner

Sven Thielmann
Immobilienmakler

Thielmann Immobilien
wurde bereits mehrfach als einer der besten Immobilienmakler aus der Region ausgezeichnet.
*Bei unserem Angebot handelt es sich um ein provisionspflichtiges Kaufangebot im qualifizierten Alleinauftrag des Eigentümers. Die vom Käufer zu zahlende Maklerprovision von 3,57% ist zahlbar mit dem Abschluss eines durch unseren Nachweis und/oder Vermittlung zustande gekommenen Kaufvertrages. Den Zwischenverkauf behalten wir uns vor. Bei aller Sorgfalt übernehmen wir ausdrücklich keine Gewähr für die Richtigkeit, Vollständigkeit und Aktualität vorstehender Angaben. Schadensersatzansprüche sind ausgeschlossen. Im Übrigen gelten unsere allgemeinen Geschäftsbedingungen für die Rechtsbeziehung zwischen Ihnen und Thielmann Immobilien. Der Makler-Vertrag mit uns kommt durch schriftliche Vereinbarung oder durch die Inanspruchnahme unserer Maklertätigkeit auf der Basis des Objekt Exposés und seiner Bedingungen zustande. Die Käufercourtage auf den Kaufpreis ist bei notariellem Vertragsabschluss verdient und fällig. Es besteht ein gesetzliches Widerrufsrecht!







