Nettetal-Hinsbeck
ERFOLGREICH VERMARKTET
Gemütliches Reihenmittelhaus mit Potenzial in zentraler Lage
| ZIMMER | SCHLAFZIMMER | BADEZIMMER | PARKEN |
|---|---|---|---|
| 3 | 2 | 1 + WC | Carport |
| HEIZUNG | ZUSTAND | BEZUGSFREI | HIGHLIGHTS |
|---|---|---|---|
| Gas-Heizung | Gepflegt | Nach Vereinbarung | Garten, Wintergarten, Carport |
Energieausweis
Bei Thielmann Immobilien legen wir großen Wert auf Transparenz. Für jede von uns angebotene Immobilie stellen wir die relevanten Angaben zum Energiebedarf bzw. -verbrauch bereit. Der Energieausweis informiert über die Energieeffizienz eines Gebäudes und ist sowohl für Käufer*innen als auch für Banken bei der Finanzierungsprüfung von Bedeutung. Gerne beraten wir Sie persönlich zur Bedeutung des Energieausweises in Ihrem Immobilienkauf.
Beschreibung
Dieses charmante Reihenmittelhaus (Baujahr 1956) in Nettetal-Hinsbeck bietet mit einer Wohnfläche von ca. 61 m² und einer Gesamtnutzfläche von rund 116 m² vielfältige Nutzungsmöglichkeiten und Ausbaupotenzial.
Ideal für Paare oder kleine Familien, die Wert auf ein gemütliches Zuhause mit Entwicklungsperspektive legen.
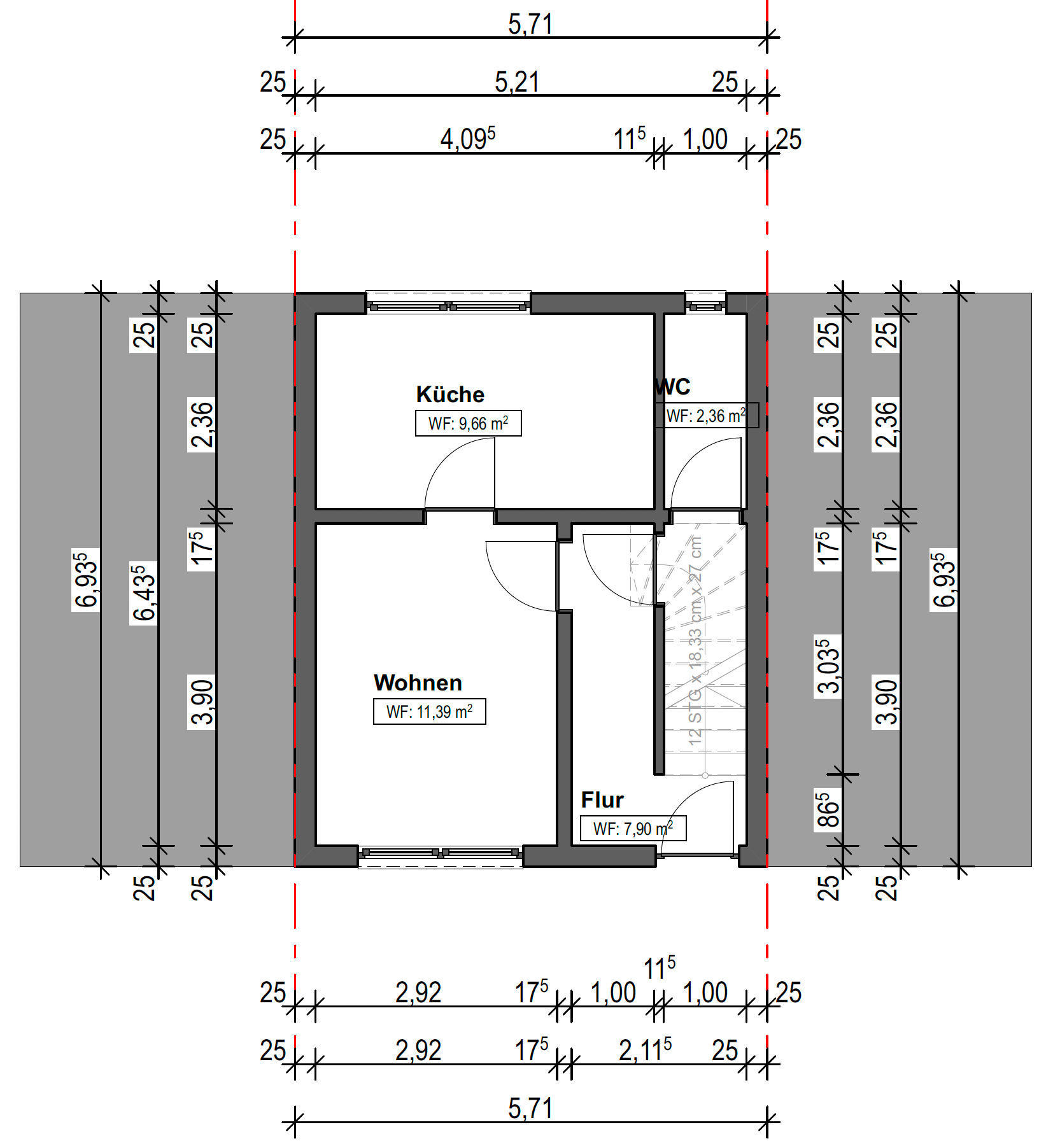
Im Erdgeschoss erwartet Sie ein heller Wohnbereich, eine funktionale Küche, ein Flur sowie ein separates Gäste-WC. Das Obergeschoss bietet zwei Schlafräume, ideal als Schlafzimmer und Büro oder Kinderzimmer.
Im Kellergeschoss befindet sich das Hauptbadezimmer mit Dusche sowie ein gemütlich gestalteter Partyraum, der zusätzlichen Platz für gesellige Stunden oder individuelle Hobbys bietet.
Ein besonderes Highlight ist der großzügige Garten, der zum Entspannen und Verweilen einlädt. Perfekt für Sommerabende, Familienfeste oder den eigenen Gemüsegarten.
Das vorhandene Carport sorgt für einen komfortablen Stellplatz direkt am Haus.
Mit etwas Kreativität lässt sich die Immobilie individuell erweitern oder modernisieren und so zu einem behaglichen Zuhause mit persönlicher Note gestalten.
Lage
Nettetal-Hinsbeck
Der idyllische Ortsteil Hinsbeck gehört zur Stadt Nettetal im Westen des Kreises Viersen und liegt mitten im malerischen Naturpark Maas-Schwalm-Nette. Das sogenannte „Bergdorf am Niederrhein“ ist bekannt für seine naturnahe und ruhige Wohnlage mit hohem Freizeitwert. Umgeben von Wäldern, Seen und weitläufigen Wanderwegen bietet Hinsbeck ideale Bedingungen für Naturliebhaber und Familien, die die Kombination aus ländlicher Idylle und guter Anbindung schätzen.
Das Zentrum von Hinsbeck mit Geschäften des täglichen Bedarfs, einer Bäckerei, Restaurants, Ärzten und Apotheken ist schnell erreichbar. Kindergärten, Grundschule und vielfältige Freizeitangebote – wie der Jugendherberge Hinsbeck, dem Kletterwald oder dem bekannten „Haus Seeblick“ am Krickenbecker See – unterstreichen die Familienfreundlichkeit des Ortes.
Auch die verkehrstechnische Anbindung ist sehr gut: Über die nahegelegene A61 und A40 erreichen Sie sowohl Viersen, Mönchengladbach als auch das Rhein-Ruhr-Gebiet in kurzer Zeit. Die niederländische Grenze ist nur wenige Kilometer entfernt, was Hinsbeck auch für Pendler attraktiv macht.
Grundrisse
Jetzt direkt Grundrisse ansehen - folgen in Kürze:

Ihr Ansprechpartner

Sven Thielmann
Geschäftsinhaber/
Immobilienkaufmann

Thielmann Immobilien
wurde bereits mehrfach als einer der besten Immobilienmakler aus der Region ausgezeichnet.
*Bei unserem Angebot handelt es sich um ein provisionspflichtiges Kaufangebot im qualifizierten Alleinauftrag des Eigentümers. Die vom Käufer zu zahlende Maklerprovision von 3,57% ist zahlbar mit dem Abschluss eines durch unseren Nachweis und/oder Vermittlung zustande gekommenen Kaufvertrages. Den Zwischenverkauf behalten wir uns vor. Bei aller Sorgfalt übernehmen wir ausdrücklich keine Gewähr für die Richtigkeit, Vollständigkeit und Aktualität vorstehender Angaben. Schadensersatzansprüche sind ausgeschlossen. Im Übrigen gelten unsere allgemeinen Geschäftsbedingungen für die Rechtsbeziehung zwischen Ihnen und Thielmann Immobilien. Der Makler-Vertrag mit uns kommt durch schriftliche Vereinbarung oder durch die Inanspruchnahme unserer Maklertätigkeit auf der Basis des Objekt Exposés und seiner Bedingungen zustande. Die Käufercourtage auf den Kaufpreis ist bei notariellem Vertragsabschluss verdient und fällig. Es besteht ein gesetzliches Widerrufsrecht!






