Nettetal-Kaldenkirchen
Gemütliche Doppelhaushälfte in Kaldenkirchen
| ZIMMER | SCHLAFZIMMER | BADEZIMMER | PARKEN |
|---|---|---|---|
| 3 | 2 | 1 | Garage |
| HEIZUNG | ZUSTAND | BEZUGSFREI | HIGHLIGHTS |
|---|---|---|---|
| Zentralheizung | Gepflegt | Nach Vereinbarung | Garage, Garten |
Energieausweis
Bei Thielmann Immobilien legen wir großen Wert auf Transparenz. Für jede von uns angebotene Immobilie stellen wir die relevanten Angaben zum Energiebedarf bzw. -verbrauch bereit. Der Energieausweis informiert über die Energieeffizienz eines Gebäudes und ist sowohl für Käufer*innen als auch für Banken bei der Finanzierungsprüfung von Bedeutung. Gerne beraten wir Sie persönlich zur Bedeutung des Energieausweises in Ihrem Immobilienkauf.
Beschreibung
Diese charmante Doppelhaushälfte befindet sich in ruhiger und gewachsener Wohnlage von Nettetal-Kaldenkirchen und überzeugt durch ihr gemütliches Wohnambiente sowie ein großzügiges Grundstück von ca. 418 m².
Die Wohnfläche von rund 75 m² erstreckt sich vollständig über das Erdgeschoss und bietet eine durchdachte Raumaufteilung mit einem Wohn- und Essbereich, einer Küche, einer Diele, einem Badezimmer sowie einem Schlafzimmer. Über eine Treppe ist das Dachgeschoss erreichbar, in dem sich zwei kleinere Räume befinden.
Diese werden baurechtlich als Nutzfläche ausgewiesen und eignen sich aufgrund ihrer Größe jeweils eher als Einzelzimmer, Hobby- oder Arbeitsraum.
Zum Angebot gehört eine praktische Garage sowie einen Hauswirtschaftsraum, der als genehmigter Anbau direkt an das Haus anschließt.
Mit Modernisierungspotenzial lässt sich aus diesem Objekt ein behagliches Zuhause in einer beliebten Wohnlage realisieren. Die ruhige Umgebung kombiniert mit einer guten Anbindung an Einkaufsmöglichkeiten, Schulen sowie den Ortskern von Kaldenkirchen macht diese Immobilie besonders attraktiv.
Ideal für Paare oder kleine Familien, die ein Haus mit Garten in angenehmer Lage suchen.
Lage
41334 Nettetal, Kaldenkirchen
Das Haus befindet sich in einer ruhigen Wohnstraße von Nettetal-Kaldenkirchen, einer der beliebtesten Wohnlagen im westlichen Stadtgebiet. Die Straße ist geprägt von gepflegten Einfamilienhäusern und Doppelhaushälften – ideal für Familien, Paare oder alle, die ein entspanntes Wohnumfeld schätzen.
Trotz der ruhigen Lage ist die Infrastruktur hervorragend: Einkaufsmöglichkeiten, Bäcker, Apotheken, Ärzte, Schulen und Kindergärten sind in wenigen Minuten erreichbar. Der Ortskern von Kaldenkirchen bietet zudem gemütliche Cafés, Restaurants und kleinere Geschäfte für den täglichen Bedarf.
Die Verkehrsanbindung ist ebenfalls ausgezeichnet. Über die A61 erreichen Sie schnell Mönchengladbach, Viersen oder Düsseldorf. Auch die niederländische Stadt Venlo ist nur wenige Minuten entfernt und bietet zusätzliche Einkaufs- und Freizeitmöglichkeiten. Der Bahnhof Kaldenkirchen sorgt für eine bequeme Anbindung an den öffentlichen Nahverkehr.
Für Naturliebhaber liegt das Haus perfekt: In unmittelbarer Nähe laden der Naturpark Schwalm-Nette, die Nette-Seen sowie zahlreiche Rad- und Wanderwege zu erholsamen Ausflügen in die Natur ein.
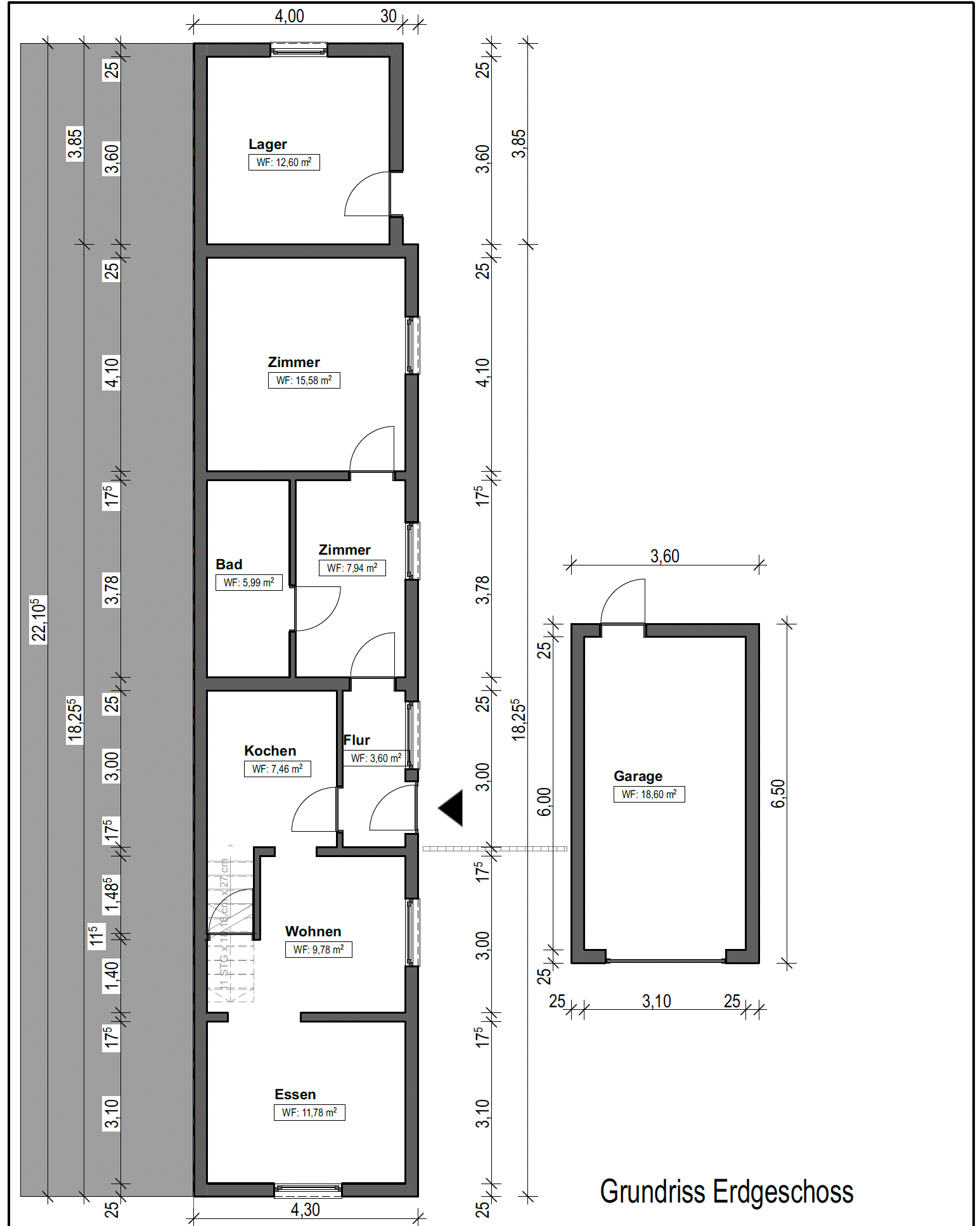
Grundrisse
Jetzt direkt Grundrisse ansehen - folgen in Kürze:
Ihr Ansprechpartner

Peter Strötges
Immobilienmakler

Thielmann Immobilien
wurde bereits mehrfach als einer der besten Immobilienmakler aus der Region ausgezeichnet.
*Bei unserem Angebot handelt es sich um ein provisionspflichtiges Kaufangebot im qualifizierten Alleinauftrag des Eigentümers. Die vom Käufer zu zahlende Maklerprovision von 3,57% ist zahlbar mit dem Abschluss eines durch unseren Nachweis und/oder Vermittlung zustande gekommenen Kaufvertrages. Den Zwischenverkauf behalten wir uns vor. Bei aller Sorgfalt übernehmen wir ausdrücklich keine Gewähr für die Richtigkeit, Vollständigkeit und Aktualität vorstehender Angaben. Schadensersatzansprüche sind ausgeschlossen. Im Übrigen gelten unsere allgemeinen Geschäftsbedingungen für die Rechtsbeziehung zwischen Ihnen und Thielmann Immobilien. Der Makler-Vertrag mit uns kommt durch schriftliche Vereinbarung oder durch die Inanspruchnahme unserer Maklertätigkeit auf der Basis des Objekt Exposés und seiner Bedingungen zustande. Die Käufercourtage auf den Kaufpreis ist bei notariellem Vertragsabschluss verdient und fällig. Es besteht ein gesetzliches Widerrufsrecht!







