Viersen-Dülken
Großzügiges Reihenmittelhaus mit individuellem Charme und attraktiver Lage in Dülken
| ZIMMER | SCHLAFZIMMER | BADEZIMMER | PARKEN |
|---|---|---|---|
| 8 | 4 | 1 + 2 WC | Garagenmiete möglich |
| HEIZUNG | ZUSTAND | BEZUGSFREI | HIGHLIGHTS |
|---|---|---|---|
| Gas-Brennwertheizung (Baujahr 2024) | Gepflegt & gehoben | Nach Vereinbarung | Terrasse & mögliche Gartenanlage |
Energieausweis
Bei Thielmann Immobilien legen wir großen Wert auf Transparenz. Für jede von uns angebotene Immobilie stellen wir die relevanten Angaben zum Energiebedarf bzw. -verbrauch bereit. Der Energieausweis informiert über die Energieeffizienz eines Gebäudes und ist sowohl für Käufer*innen als auch für Banken bei der Finanzierungsprüfung von Bedeutung. Gerne beraten wir Sie persönlich zur Bedeutung des Energieausweises in Ihrem Immobilienkauf.
Beschreibung
Zum Verkauf steht ein gepflegtes Reihenmittelhaus in Dülken, das ca. 1913 in massiver Bauweise auf einem 178 m² großen Grundstück errichtet und fortlaufend modernisiert wurde. Mit einer Wohnfläche von rund 194 m² und insgesamt vier Schlafzimmern bietet die Immobilie ideale Voraussetzungen für Familien oder Paare mit Platzbedarf.
Im Erdgeschoss erwarten Sie ein großzügiger Wohn- und Essbereich, eine Küche mit direktem Zugang zur sonnigen Südterrasse und dem Garten sowie ein Gäste-WC. Die hochwertige Einbauküche der Marke Thelen ist bereits im Kaufpreis enthalten. Der Garten kann individuell neu gestaltet werden und bietet ideale Bedingungen für entspannte Stunden im Freien.
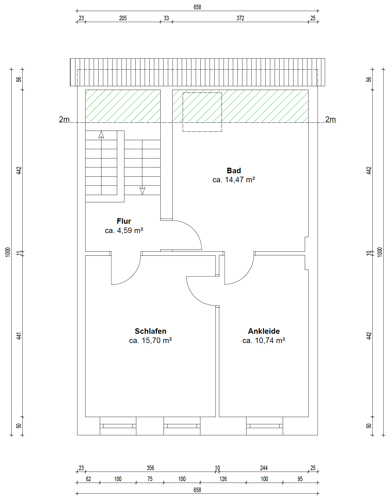
Das erste Obergeschoss umfasst drei Schlafzimmer, von denen eines über einen Balkon verfügt, sowie ein weiteres Gäste-WC. Im Dachgeschoss befindet sich ein großes Schlafzimmer mit angrenzendem Ankleidezimmer und ein geräumiges Badezimmer, das viel Komfort bietet.
Das Haus ist voll unterkellert und verfügt über eine moderne Gas-Brennwertheizung der Marke Buderus aus dem Jahr 2024, die für effiziente Wärme sorgt. Die erneuerten Kunststofffenster mit Doppelverglasung gewährleisten eine gute Isolierung.
Aktuell wird eine Garage in der Nähe angemietet, die bei Bedarf übernommen werden kann.
Lage
41751 Viersen
Die Immobilie befindet sich in Viersen-Dülken, einem charmanten Stadtteil der Kreisstadt Viersen am Rande des Naturparks Schwalm-Nette. Dülken verbindet eine hohe Lebensqualität mit einer sehr guten Infrastruktur und einer naturnahen Umgebung.
Durch die schnelle Anbindung an die Autobahnen A52 und A61 sowie den Regionalverkehr sind Düsseldorf, das Ruhrgebiet und die Niederlande in kurzer Zeit erreichbar – ideal für Pendler.
Die Dülkener Innenstadt begeistert mit einer historischen Altstadt, gemütlichen Cafés, abwechslungsreichen Einkaufsmöglichkeiten und regelmäßigen kulturellen Veranstaltungen. Schulen, Kindergärten, Ärzte, Supermärkte und weitere Einrichtungen des täglichen Bedarfs sind ebenfalls bequem fußläufig erreichbar.
Grundrisse
Jetzt direkt Grundrisse ansehen:

Jetzt 360-Grad-Rundgang erleben
Ihr Ansprechpartner

Rainer Thielmann
Immobilienmakler

Thielmann Immobilien
wurde bereits mehrfach als einer der besten Immobilienmakler aus der Region ausgezeichnet.
*Bei unserem Angebot handelt es sich um ein provisionspflichtiges Kaufangebot im qualifizierten Alleinauftrag des Eigentümers. Die vom Käufer zu zahlende Maklerprovision von 3,57% ist zahlbar mit dem Abschluss eines durch unseren Nachweis und/oder Vermittlung zustande gekommenen Kaufvertrages. Den Zwischenverkauf behalten wir uns vor. Bei aller Sorgfalt übernehmen wir ausdrücklich keine Gewähr für die Richtigkeit, Vollständigkeit und Aktualität vorstehender Angaben. Schadensersatzansprüche sind ausgeschlossen. Im Übrigen gelten unsere allgemeinen Geschäftsbedingungen für die Rechtsbeziehung zwischen Ihnen und Thielmann Immobilien. Der Makler-Vertrag mit uns kommt durch schriftliche Vereinbarung oder durch die Inanspruchnahme unserer Maklertätigkeit auf der Basis des Objekt Exposés und seiner Bedingungen zustande. Die Käufercourtage auf den Kaufpreis ist bei notariellem Vertragsabschluss verdient und fällig. Es besteht ein gesetzliches Widerrufsrecht!






