Viersen-Boisheim
Detached one- or two-family house with charm in Boisheim
| ZIMMER | BEDROOM | BATHROOM | |
|---|---|---|---|
| 8 | 5 | 2 | double garage |
| HEATING | CONDITION | FREE OF CHARGE | HIGHLIGHTS |
|---|---|---|---|
| Oil heating (built in 2001) | Well maintained, in need of modernization | By appointment | Single- or two-family house, winter garden |
Energy certificate
At Thielmann Immobilien, we place great importance on transparency. For every property we offer, we provide the relevant information on energy requirements and consumption. The energy certificate provides information on a building's energy efficiency and is important for both buyers and banks when assessing financing. We would be happy to advise you personally on the importance of the energy certificate in your property purchase.
Description
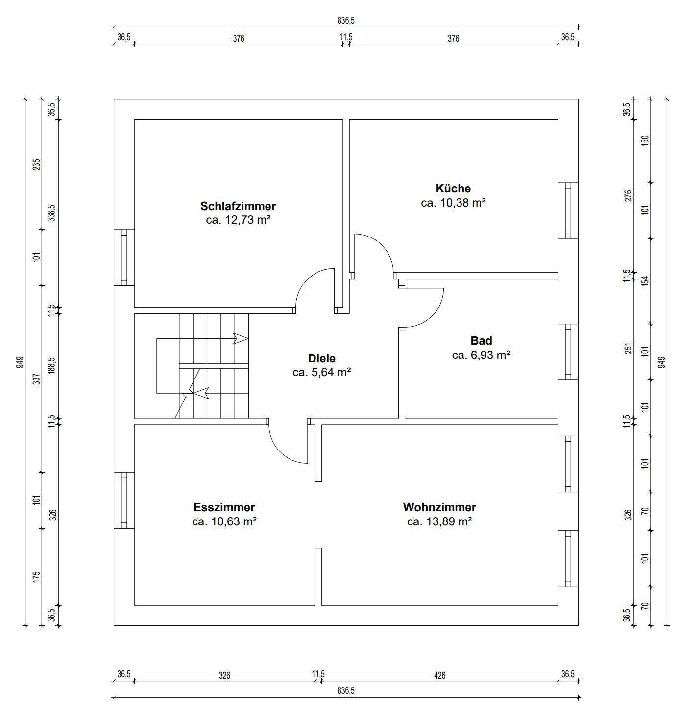
This spacious single-family home, built around 1900, offers numerous potential uses with approximately 180 m² of living space and a plot of approximately 324 m². With a total of eight rooms, including five bedrooms, the property allows for flexible layout. The existing second kitchen and additional bathroom on the upper floor are particularly advantageous, allowing for use as a multi-generational home. The conservatory with adjoining storage room and hobby room offers additional space that can be used in a variety of ways, for example as a home office, recreational room, or storage space. The oil heating system was installed in 2001. The double garage accommodates two vehicles and is characterized by its ideal height, which is also suitable for a motorhome or larger vehicles.
Make
Boisheim: The property is located in Viersen-Boisheim – an idyllic district on the Lower Rhine, directly adjacent to the Schwalm-Nette Nature Park. The green surroundings, with lakes, forests, and bike paths, offer a high level of residential and recreational value.
Thanks to the proximity to the A61, A52, and A44 motorways, cities such as Düsseldorf, Cologne, and the Netherlands are easily accessible. A regional train station and bus connections ensure good public transport connections.
Boisheim offers a primary school, kindergarten, and local amenities. Additional shopping facilities, schools, and doctors can be found in the surrounding towns such as Nettetal, Dülken, and Lobberich.
Ihr Ansprechpartner

Rainer Thielmann
Immobilienmakler

Thielmann Immobilien has been recognized several times as one of the best real estate agents in the region.
*Our offer is a commission-based purchase offer, made on the sole and qualified behalf of the owner. The brokerage commission of 3.57% to be paid by the buyer is payable upon conclusion of a purchase agreement concluded through our verification and/or mediation. We reserve the right to sell the property prior to the conclusion of the contract. Despite all due care, we expressly assume no liability for the accuracy, completeness, or timeliness of the above information. Claims for damages are excluded. Otherwise, our general terms and conditions apply to the legal relationship between you and Thielmann Immobilien. The brokerage contract with us is concluded through a written agreement or through the use of our brokerage services based on the property exposé and its terms and conditions. The buyer's commission on the purchase price is earned and due upon notarized conclusion of the contract. A statutory right of withdrawal applies!







