Viersen-Boisheim
ERFOLGREICH VERMARKTET
Freistehendes Ein- bis Zweifamilienhaus mit Charme in Boisheim
| ZIMMER | SCHLAFZIMMER | BADEZIMMER | PARKEN |
|---|---|---|---|
| 8 | 5 | 2 | Doppelgarage |
| HEIZUNG | ZUSTAND | BEZUGSFREI | HIGHLIGHTS |
|---|---|---|---|
| Öl-Heizung (Bj. 2001) | Gepflegt, modernisierungsbedürftig | Nach Vereinbarung | Ein- bis Zweifamilienhaus, Wintergarten |
Energieausweis
Bei Thielmann Immobilien legen wir großen Wert auf Transparenz. Für jede von uns angebotene Immobilie stellen wir die relevanten Angaben zum Energiebedarf bzw. -verbrauch bereit. Der Energieausweis informiert über die Energieeffizienz eines Gebäudes und ist sowohl für Käufer*innen als auch für Banken bei der Finanzierungsprüfung von Bedeutung. Gerne beraten wir Sie persönlich zur Bedeutung des Energieausweises in Ihrem Immobilienkauf.
Beschreibung
Dieses ca. im Jahre 1900 erbaute, großzügige Einfamilienhaus bietet auf ca. 180 m² Wohnfläche und einem Grundstück von ca. 324 m² zahlreiche Nutzungsmöglichkeiten. Mit insgesamt 8 Zimmern, darunter 5 Schlafzimmer, ermöglicht die Immobilie eine flexible Raumaufteilung. Besonders vorteilhaft ist die vorhandene zweite Küche und das zusätzliche Badezimmer im Obergeschoss, die eine Nutzung als Mehrgenerationenhaus ermöglicht.
Der Wintergarten mit angrenzendem Abstellraum und Hobbyraum bietet zusätzliche Flächen, die sich vielseitig nutzen lassen, beispielsweise als Arbeitszimmer, Freizeitraum oder Stauraum. Die Ölheizung wurde 2001 installiert.
Die Doppelgarage bietet Platz für zwei Fahrzeuge und zeichnet sich durch ihre ideale Höhe aus, die auch für die Unterbringung eines Wohnmobils oder größerer Fahrzeuge geeignet ist.
Lage
Boisheim
Die Immobilie befindet sich in Viersen-Boisheim – einem idyllischen Ortsteil am Niederrhein, direkt am Naturpark Schwalm-Nette. Die grüne Umgebung mit Seen, Wäldern und Radwegen bietet hohen Wohn- und Erholungswert.
Dank der Nähe zur A61, A52 und A44 sind Städte wie Düsseldorf, Köln und die Niederlande schnell erreichbar. Ein Regionalbahnhof und Busverbindungen sorgen für gute ÖPNV-Anbindung.
Boisheim bietet eine Grundschule, Kindergarten und Nahversorgung. Weitere Einkaufsmöglichkeiten, Schulen und Ärzte finden Sie in den umliegenden Städten wie Nettetal, Dülken und Lobberich.
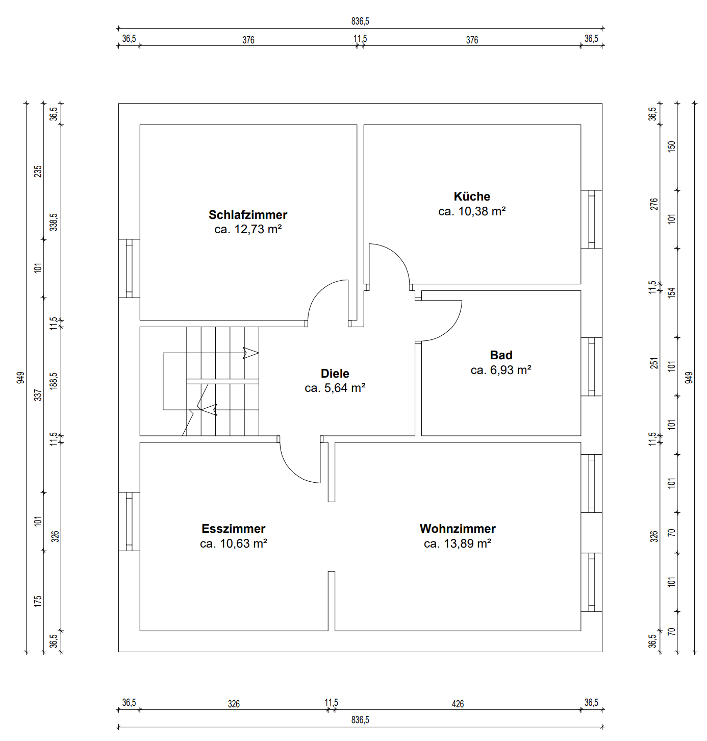
Grundrisse
Jetzt direkt Grundrisse ansehen:

Ihr Ansprechpartner

Rainer Thielmann
Immobilienmakler

Thielmann Immobilien
wurde bereits mehrfach als einer der besten Immobilienmakler aus der Region ausgezeichnet.
*Bei unserem Angebot handelt es sich um ein provisionspflichtiges Kaufangebot im qualifizierten Alleinauftrag des Eigentümers. Die vom Käufer zu zahlende Maklerprovision von 3,57% ist zahlbar mit dem Abschluss eines durch unseren Nachweis und/oder Vermittlung zustande gekommenen Kaufvertrages. Den Zwischenverkauf behalten wir uns vor. Bei aller Sorgfalt übernehmen wir ausdrücklich keine Gewähr für die Richtigkeit, Vollständigkeit und Aktualität vorstehender Angaben. Schadensersatzansprüche sind ausgeschlossen. Im Übrigen gelten unsere allgemeinen Geschäftsbedingungen für die Rechtsbeziehung zwischen Ihnen und Thielmann Immobilien. Der Makler-Vertrag mit uns kommt durch schriftliche Vereinbarung oder durch die Inanspruchnahme unserer Maklertätigkeit auf der Basis des Objekt Exposés und seiner Bedingungen zustande. Die Käufercourtage auf den Kaufpreis ist bei notariellem Vertragsabschluss verdient und fällig. Es besteht ein gesetzliches Widerrufsrecht!






