Für Individualisten - Jugenstilhaus in Dülken - 2014 umfangreich saniert.
Wohnfläche ca. 134 m² +
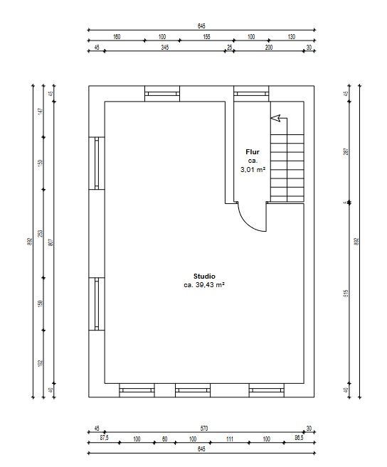
42 m² Nutzfläche ausgebautes Studio
3 - 4 Schlafzimmer
175 m² Grundstück
339.000 €
zzgl. 3,57% Provision
Zimmer
5
Anzahl Bäder
1 Badezimmer mit Sauna, 1 x G-WC
Bezugsfrei
nach Vereinbarung
Schlafzimmer
3 mit Option auf 4
Baujahr
1890
Qualität Ausstattung Zustand
gepflegt, gehobene Ausstattung
Heizung
Gasbrennwertheizung Bj. 2023
Garage / Stellplatz
nicht vorhanden - öffentliche Stellplätze vor der Tür
Energieausweis
Energieausweis in Bearbeitung
Beschreibung
Zum Verkauf steht dieses besondere Reiheneckhaus im Jugendstil in zentraler Lage von Viersen – Dülken. Die Immobilie bietet Ihnen eine Wohnfläche von 134 m² und ein zu Wohnzwecken ausgebautes Dachgeschoss mit einer Nutzfläche von ca. 42 m². Insgesamt stehen Ihnen drei Schlafzimmer zur Verfügung, jedoch lässt sich das erwähnte Dachgeschoss wunderbar in zwei größere Zimmer mit ca. 20 m² unterteilen, somit hätten Sie insgesamt vier Schlafzimmer.
Das Objekt wurde ursprünglich ca. 1890 auf dem 175 m² großen Grundstück erbaut und fortlaufend modernisiert. Im Jahre 2014 hat der jetzige Eigentümer das Haus umfangreich saniert und mit hochwertigen Materialien ausgestattet. Die Elektronik und das Badezimmer wurden dabei ebenfalls erneuert. Zuletzt wurde 2023 eine neue Gasbrennwertheizung eingebaut.
Ein Garten existiert nicht, Ihnen steht jedoch ein kleiner, gemütlicher Innenhof mit Zugang zur großen Werkstatt zur Verfügung. Diese kann auch nach Umrüstung als Doppelgarage genutzt werden.
Die vorhandene Einbauküche ist bereits im Kaufpreis enthalten. Eine weitere Besonderheit ist das riesige Badezimmer mit XXL Dusche, Wanne und eigenem Saunabereich.
Der Kamin zwischen dem Wohn- und Esszimmer ist aktuell nicht in Betrieb, kann jedoch wieder intakt gesetzt werden.
Zahlreiche öffentliche Stellplätze befinden sich direkt vor der Tür.
Lage
Theodor-Frings-Alle 17, Dülken
Am Rande des reizvollen Naturparks Schwalm-Nette liegt die Kreisstadt Viersen. Hier leben heute rund 76.000 Menschen in den vier Stadteilen Viersen, Süchteln, Dülken, Boisheim. Dülken ist mit gut 20.000 Einwohnern nach Alt-Viersen der zweitgrößte Stadtteil. Eine gute Infrastruktur mit Schulen, Kindergärten, Supermärkten, Metzgereien, Bäckereien, Banken, und Ärzten sowie eine sehr gute Verkehrsanbindung sorgen für eine optimale Versorgung der in dieser Stadt und deren Umgebung lebenden Menschen.

Wenn diese Immobilie Ihr Interesse geweckt hat und Sie gerne unverbindlich nähere Informationen oder einen Besichtigungstermin wünschen, dann senden Sie uns eine Kontaktanfrage.
Gerne beraten wir Sie auch im Bereich der Finanzierung. Mit einem Pool von über 400 Banken und einem starken Kooperationspartner an unserer Seite, können wir Ihnen Finanzierungsmöglichkeiten anbieten, welche perfekt auf Sie und Ihre Lebenssituation zugeschnitten sind. Die Beratung hierzu ist komplett unverbindlich und kostenlos!
Ich freue mich auf Sie
Sven Thielmann
Bei unserem Angebot handelt es sich um ein provisionspflichtiges Kaufangebot im qualifizierten Alleinauftrag des Eigentümers. Die vom Käufer zu zahlende Maklerprovision in Höhe von 3,57% ist zahlbar mit dem Abschluss eines durch unseren Nachweis und / oder Vermittlung zustande gekommenen Kaufvertrages. Den Zwischenverkauf behalten wir uns vor. Bei aller Sorgfalt übernehmen wir ausdrücklich keine Gewähr für die Richtigkeit, Vollständigkeit und Aktualität vorstehender Angaben. Schadensersatzansprüche sind ausgeschlossen. Im Übrigen gelten unsere allgemeinen Geschäftsbedingungen für die Rechtsbeziehung zwischen Ihnen und Thielmann Immobilien. Der Makler-Vertrag mit uns kommt durch schriftliche Vereinbarung oder durch die Inanspruchnahme unserer Maklertätigkeit auf der Basis des Objekt Exposés und seiner Bedingungen zustande. Die Käufercourtage auf den Kaufpreis ist bei notariellem Vertragsabschluss verdient und fällig. Es besteht ein gesetzliches Widerrufsrecht!

 
  
  
  
  
  
  
  
  
  
  
  
  
  
  
  
  
  
  
  
  
  
  
  
  
  
  
  
  
  
  
  
  
  
  
  
  
  
  
  
  
  
  
  
  
  
  
  
  
  
  
  
  
  
  
  
  
  
  
  
  
  
  
  
  
  
  
  
  
  
  
  
 


