Viersen-Dülken
Cozy terraced house with individual charm and attractive location in Dülken
| ZIMMER | BEDROOM | BATHROOM | |
|---|---|---|---|
| 8 | 4 | 1 2 WC | Garage rental possible |
| HEATING | CONDITION | FREE OF CHARGE | HIGHLIGHTS |
|---|---|---|---|
| Gas condensing boiler (built in 2024) | Well-groomed & upscale | By appointment | Terrace & possible garden |
Energy certificate
At Thielmann Immobilien, we place great importance on transparency. For every property we offer, we provide the relevant information on energy requirements and consumption. The energy certificate provides information on a building's energy efficiency and is important for both buyers and banks when assessing financing. We would be happy to advise you personally on the importance of the energy certificate in your property purchase.
Description
For sale is a well-maintained terraced house in Dülken, built around 1913 on a 178 m² plot of land and continuously modernized. With a living area of approximately 194 m² and a total of four bedrooms, the property offers ideal conditions for families or couples needing space.
On the ground floor, you'll find a spacious living and dining area, a kitchen with direct access to the sunny south-facing terrace and garden, and a guest toilet. The high-quality Thelen fitted kitchen is included in the purchase price. The garden can be individually redesigned and offers ideal conditions for relaxing outdoors.
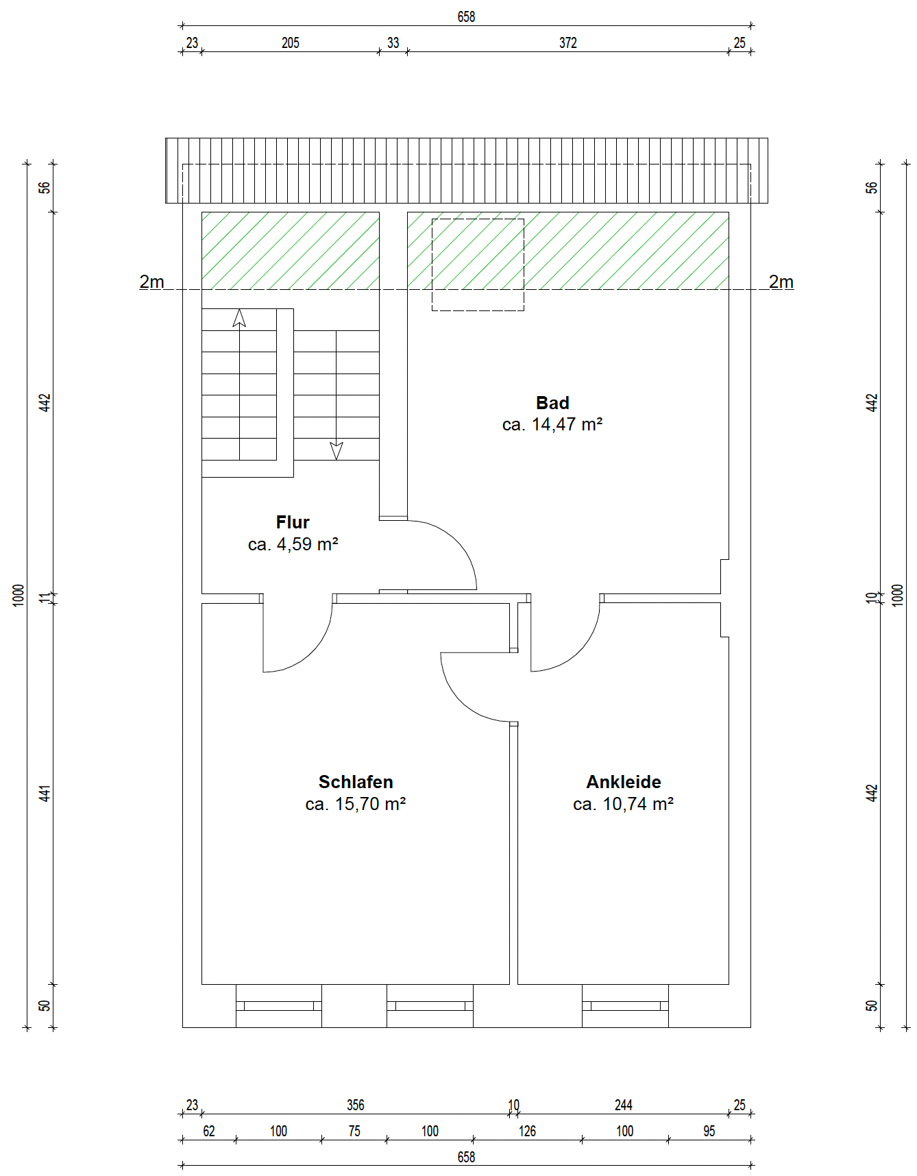
The first floor comprises three bedrooms, one of which has a balcony, as well as another guest toilet. The attic features a large bedroom with an adjoining dressing room and a spacious bathroom offering plenty of comfort.
The house has a full basement and features a modern Buderus gas condensing boiler from 2024, providing efficient heat. The updated double-glazed PVC windows ensure good insulation.
We are currently renting a garage nearby, which we can take over if needed.
Make
41751 Viersen
The property is located in Viersen-Dülken, a charming district of the district town of Viersen on the edge of the Schwalm-Nette Nature Park. Dülken combines a high quality of life with excellent infrastructure and a natural environment.
Thanks to the fast connection to the A52 and A61 motorways as well as regional transport, Düsseldorf, the Ruhr area and the Netherlands can be reached in a short time – ideal for commuters.
Dülken's city center boasts a historic old town, cozy cafés, diverse shopping opportunities, and regular cultural events. Schools, kindergartens, doctors, supermarkets, and other daily amenities are also within easy walking distance.
Experience the 360-degree tour now
Ihr Ansprechpartner

Rainer Thielmann
Real estate agent

Thielmann Immobilien has been recognized several times as one of the best real estate agents in the region.
*Our offer is a commission-based purchase offer, made on the sole and qualified behalf of the owner. The brokerage commission of 3.57% to be paid by the buyer is payable upon conclusion of a purchase agreement concluded through our verification and/or mediation. We reserve the right to sell the property prior to the conclusion of the contract. Despite all due care, we expressly assume no liability for the accuracy, completeness, or timeliness of the above information. Claims for damages are excluded. Otherwise, our general terms and conditions apply to the legal relationship between you and Thielmann Immobilien. The brokerage contract with us is concluded through a written agreement or through the use of our brokerage services based on the property exposé and its terms and conditions. The buyer's commission on the purchase price is earned and due upon notarized conclusion of the contract. A statutory right of withdrawal applies!







